Dane techniczne
- Powierzchnia użytkowa 122.87 m²
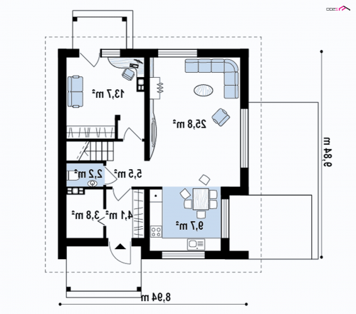
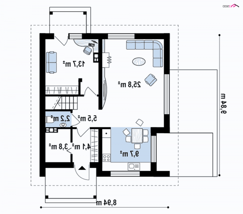
- Powierzchnia zabudowy 83.74 m²
- Kubatura 332.80 m³
- Kąt nachylenia dachu 30.00°
- Powierzchnia dachu 124.00 m²
- Wysokość budynku 8.07 m
- Min. wymiary działki 17.84x16.94 m
- Pracownia Studio Z500
Technologia budowy
Ściany: gazobeton, ceramika, silikaty
Dach: dachówka, blachodachówka
Strop: betonowy gęstożebrowy Teriva
Opis
Z248 z poddaszem użytkowym, przeznaczony dla 3-4-osobowej rodziny. Strefa wejściowa czaruje swoją symetrią i elegancją. Zgrabną bryłę budynku otula szykowna elewacja.
Na parterze mieści się strefa dzienna, którą tworzy dobrze doświetlony, otwarty na część jadalną salon z kominkiem oraz wygodna kuchnia. Dodatkowo, znajduje się tu gabinet, łazienka oraz pomieszczenie gospodarcze.
Strefa nocna na poddaszu to dwie sypialnie oraz komfortowa sypialnia dla dwojga rodziców, z dostępem do wspólnej łazienki. Z248 to imponująca przestrzeń możliwości – z zewnątrz czaruje nowoczesnym wdziękiem, a wewnątrz uwodzi imponującym układem pomieszczeń. Na szczególną uwagę zasługuje duże przeszklenie, dzięki której do wnętrza domu swobodnie wpada naturalne światło oraz dobra, zielona energia ogrodu.
Idealny do usytuowania na działce z wjazdem od wschodu.
Dbamy o swoich Klientów, jak nikt inny!
Do każdego projektu zakupionego za pośrednictwem serwisu kreoDOM.pl otrzymasz książeczkę z rabatami na zakupy w firmach Komfort, Fachowiec, Domino Łazienki, Komandor, Witek Home i innych. Książeczka na pewno okaże się przydatna podczas urządzania Twojego wymarzonego domu!
Książeczka z rabatami do takich firm jak: Komfort, Domino Łazienki, Fachowiec, Vox, Komandor, Witek Home i innych
Gwarancja
bezpiecznych zakupów
Dodatkowe pakiety projektowe
- Kosztorys inwestorski 249,00zł
- Zestawienie materiałów 57,00 zł
- Wentylacja mechaniczna z rekuperacja 550,00 zł
- Pompa ciepła 250,00 zł
- Kotłownia na paliwo stałe zapytaj o dostępność
- Ogrzewanie podłogowe 350,00 zł
- Kolektory słoneczne 250,00 zł
- Przydomowa oczyszczalnia ścieków 350,00 zł
- Wersja elektroniczna projektu 197,00 zł
- Dodatkowy egzemplarz projektu 249,00 zł