Dane techniczne
- Powierzchnia użytkowa 16.16 m²
- Powierzchnia zabudowy 33.00 m²
- Kubatura 137.00 m³
- Kąt nachylenia dachu 30.00°
- Powierzchnia dachu 53.00 m²
- Wysokość budynku 4.86 m
- Min. wymiary działki 13.60x13.00 m
- Pracownia Pro Arte
Technologia budowy
Technologia tradycyjna : - ściany zewnętrzne murowane grubości 30 cm - ściany wewnętrzne działowe gr. 12 cm - wszystkie ściany wykonane z pustaków ceramicznych "POROTHERM" - sufit podwieszany z płyt GK na ruszcie stalowym - konstrukcja więźby dachowej drewniana w układzie krokwiowowym z dolnym belkami - pokrycie dachówka ceramiczna - instalacja grzewcza : konwektor elektryczny -
Opis
Amadora to wybór dla wszystkich marzących o wypoczynku. Dzięki naszym projektom budynków na zgłoszenia każdego stać na dom letniskowy. Drewniana weranda świetnie komponuje się z brązowym cokolikiem z klinkieru, całości dopełnia dwuspadowy dach utrzymany w podobnej kolorystyce. Przyjaźnie zaprojektowane wnętrze, na które składają się: wiatrołap, pokój dzienny z aneksem kuchennym oraz łazienka są przekonującym argumentem do wybrania właśnie tego projektu.
Rzuty
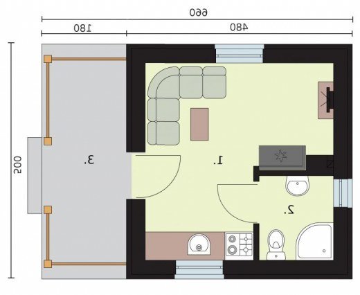
RZUT PRZYZIEMIA
- Pokój dzienny z aneksem sypialnaym i kuchennym 13.23 m2
- Łazienka 2.93 m2
Rzuty
RZUT PRZYZIEMIA
- Pokój dzienny z aneksem sypialnaym i kuchennym 13.23 m2
- Łazienka 2.93 m2
Dbamy o swoich Klientów, jak nikt inny!
Do każdego projektu zakupionego za pośrednictwem serwisu kreoDOM.pl otrzymasz książeczkę z rabatami na zakupy w firmach Komfort, Fachowiec, Domino Łazienki, Komandor, Witek Home i innych. Książeczka na pewno okaże się przydatna podczas urządzania Twojego wymarzonego domu!
Książeczka z rabatami do takich firm jak: Komfort, Domino Łazienki, Fachowiec, Vox, Komandor, Witek Home i innych
Gwarancja
bezpiecznych zakupów
Dodatkowe pakiety projektowe
- Kosztorys inwestorski Zapytaj o dostępność