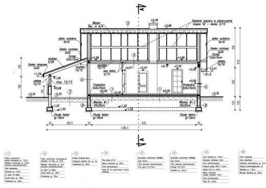
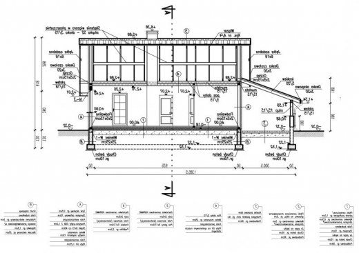
Technologia tradycyjna : - ściany zewnętrzne murowane gr. 30 cm - ściany wewnętrzne nośne gr. 25 cm - ściany wewnętrzne działowe gr. 12 cm - wszystkie ściany wykonane z pustaków ceramicznych "POROTHERM" - sufit podwieszany z płyt GK na ruszcie stalowym - konstrukcja więźby dachowej drewniana w układzie płatwiowo-kleszczowym - pokrycie dachówka ceramiczna - istnieje możliwość adaptacji obiektu na budynek całoroczny - w przypadku wersji całorocznej docieplenie warstwą styropianu gr. 10 cm. - instalacja grzewcza : kominek - instalacja grzewcza w wersji całorocznej : kocioł gazowy w łazience
Technologia szkieletu drewnianego : - ściany zewnętrzne : słupki 5x15 rozstawione max. co 40cm obite zewnątrz płytą OSB 3 1,8cm , a wewnątrz płytą GK 1,25cm , przestrzeń pomiędzy słupkami wypełniona wełną mineralną 15cm - ściana wewnętrzna działowa : słupki 5x9 rozstawione max. co 40cm obite z dwóch stron płytą GK 1,25cm przestrzeń pomiędzy słupkami wypełniona wełną mineralną 9cm - sufit podwieszany z płyt GK na ruszcie stalowym - konstrukcja więźby dachowej : kratownica drewniana - pokrycie dachówka ceramiczna - istnieje możliwość adaptacji obiektu na budynek całoroczny - docieplenie styropianem ryflowanym o gr. 5cm - w przypadku wersji całorocznej docieplenie warstwą styropianu gr. 10 cm. - instalacja grzewcza w wersji całorocznej : kocioł gazowy w łazience.
Barbados 2 – dom letniskowy Projekt dostępny również jako CAŁOROCZNY!!!
Ten projekt to poprawiony, racjonalnie zagospodarowany brat domku letniskowego Barbados. Korzystniejsze rozmieszczenie pomieszczeń, rozległa przystająca do elewacji zewnętrznej wiata, sprawiają, że mamy do czynienia z zupełnie nową jakością. Ten dom letniskowy jest wymarzonym miejscem na wyczekany urlop, czy wakacje. Barbados 2 to przemyślanie zaprojektowane dzieło architektoniczne, które łączy praktyczne zalety z elegancją i prostotą. Wnętrze wyróżnia uporządkowany układ pokoi, na który składają się powiększone w stosunku do Barbados 1 pomieszczenia, takie jak salon, pokój gościnny z kuchnią, dwa pokoje oraz łazienka. Na zewnątrz świetnym i niezwykle użytecznym pomysłem jest zadaszony taras, z pewnością będzie on miejscem niejednej udanej biesiady, spotkania, każdego miłego wieczoru.