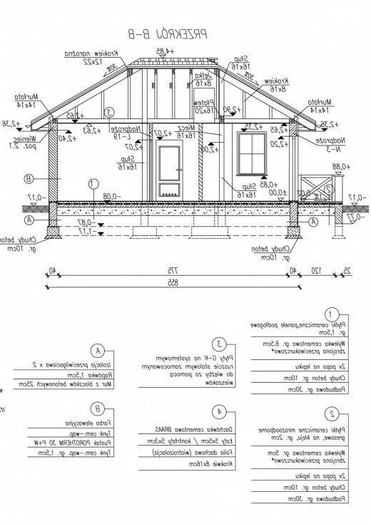
Technologia tradycyjna, ściany zewnętrzne murowane grubości 30 cm, działowe gr. 12 cm. Wszystkie ściany wykonane z pustaków ceramicznych „POROTHERM”. Konstrukcja więźby dachowej drewniana, pokrycie dachówka ceramiczna. Istnieje mozliwośc adaptacji obiektu na budynek całoroczny - docieplenie warstwą styropianu gr. 10 cm.
Orientacyjny koszt inwestycji (technologia tradycyjna, wersja całoroczna):
stan pod klucz - 119 397 zł (netto).
Wycena nie obejmuje instalacji wewnętrznych.
Stan surowy zamknięty - budynek ocieplony, z pełną stolarką dzwiowo-okienną zewnętrzną, dach kryty dachówką ceramiczną, wszystkie powierzchnie pionowe i poziome przygotowane do położenia ostatniej warstwy wykończeniowej (tynk, płytki, panele).
Realizacja tzw. "systemem gospodarczym" pozwala obniżyć koszty o około 30%.
Projekt dostępny również jako CAŁOROCZNY!!!
Bayamo C dom mieszkalny, całoroczny - 2700,00 zł.
"Bayamo" Jeżeli potrzebujesz prostego i funkcjonalnego domku letniskowego (dostępnego również w wersji całorocznej), to projekt Bayamo jest właśnie dla Ciebie. Wejście do domku, umieszczone w samym środku elewacji frontowej, sąsiaduje z dwoma oknami. Nad drzwiami, które z prawej i lewej strony zostały otoczone symetrycznymi murkami, zamontować można dwie lampki oświetlające przestrzeń wokół wejścia, po zapadnięciu zmroku. Gdy wejdziemy do środka, domek zaskoczy nas funkcjonalnością rozwiązań. Po pierwsze mamy tutaj, przede wszystkim oddzielone od reszty pomieszczeń, dwie, przestronne sypialnie. Projekt jest zatem komfortowym rozwiązaniem dla czteroosobowej rodziny lub dwóch małżeństw. Obok sypialni, przewidziano także miejsce na łazienkę z natryskiem. Sercem całego projektu jest jednak pomieszczenie o największej powierzchni. Możemy tutaj wydzielić część potrzebną do przygotowywania i spożywania posiłków oraz większą część pełniącą funkcję pokoju dziennego. Bezpośrednio z pokoju dziennego, zaopatrzonego w aneks kuchenny, można przejść na taras. Jeżeli wzniesiemy domek zgodnie z kierunkami świata, przewidzianymi w projekcie, będziemy mogli podziwiać stąd piękne zachody słońca. Taki układ pomieszczeń w domku letniskowym będzie także sprzyjał urządzaniu przyjęć na tarasie czy w ogrodzie, ponieważ część kuchenna została zaprojektowana tak, by była w pobliżu bocznego wyjścia z domu. Bayamo zasługuje na uwagę, ponieważ pomieszczenia zostały w nim rozmieszone tak, by optymalnie wykorzystać przestrzeń, co jest niezwykle istotne w niewielkich domkach letniskowych. Nie przewidziano tutaj pomieszczenia gospodarczego, ale rekompensuje nam to obecność dwóch sypialni. Być może warto wziąć pod uwagę właśnie ten projekt? Projekt składa się z części architektonicznej, konstrukcyjnej, wewnętrznych instalacji wod.-kan, c. o. i elektrycznej. W projekcie załączone są podstawowe zestawienie stali, drewna i stolarki okienno-drzwiowej. Do projektu dołączamy bezpłatną zgodę na wprowadzenie zmian, oświadczenie projektantów o wykonaniu projektu zgodnie z obowiązującymi normami i przepisami oraz kserokopie uprawnień projektantów wraz z aktualnym wpisem do izby. W przypadku zamówienia projektu w technologii lekkiej, drewnianej konstrukcji szkieletowej, powierzchnia użytkowa budynku jest o około 7% większa.