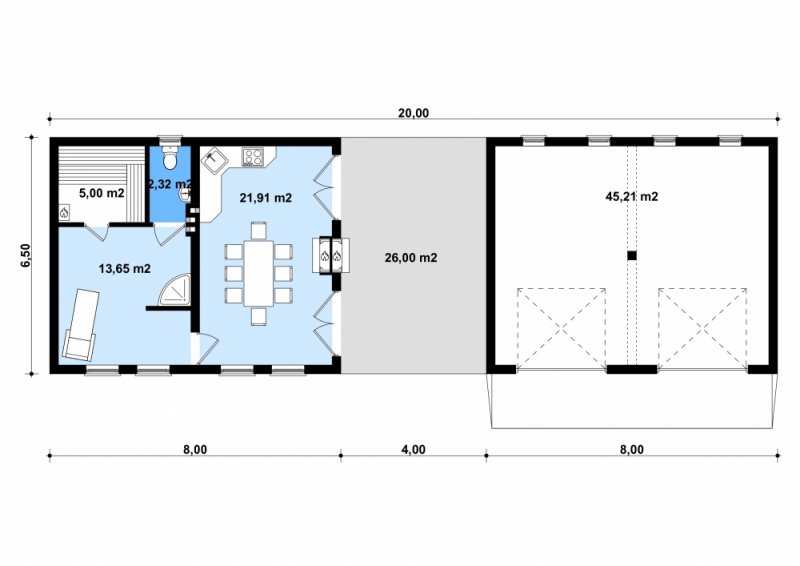
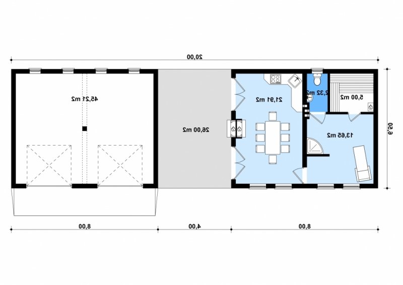
Dane techniczne
- Powierzchnia użytkowa 42.16 m²
- Powierzchnia zabudowy 104.00 m²
- Kubatura 424.00 m³
- Kąt nachylenia dachu 3.00°
- Wysokość budynku 3.35 m
- Garaż 45.21 m²
- Pracownia Kup projekt
Technologia budowy
Budynek wykonany w technologii tradycyjnej. Ściany murowane z bloczków z betonu komórkowego grubości 24cm i 12cm. Grill z cegły ceramicznej pełnej. Komin z cegły ceramicznej pełnej. Słup i podciągi żelbetowe. Więźba dachowa dwuspadowa, drewniana, pokryta blachą trapezową.
Opis
PROJEKT:
Projekt budynku rekreacyjnego, parterowego, niepodpiwniczonego, z sauną, pokojem wypoczynkowym, aneksem kuchennym, łazienką i garażem dwustanowiskowym, przeznaczonym dla samochodów osobowych. Do projektu dołączone jest zestawienie: stali, więźby dachowej oraz stolarki drzwiowej, jak również bezpłatna zgoda na dokonanie zmian.
Dbamy o swoich Klientów, jak nikt inny!
Do każdego projektu zakupionego za pośrednictwem serwisu kreoDOM.pl otrzymasz książeczkę z rabatami na zakupy w firmach Komfort, Fachowiec, Domino Łazienki, Komandor, Witek Home i innych. Książeczka na pewno okaże się przydatna podczas urządzania Twojego wymarzonego domu!
Książeczka z rabatami do takich firm jak: Komfort, Domino Łazienki, Fachowiec, Vox, Komandor, Witek Home i innych
Gwarancja
bezpiecznych zakupów
Dodatkowe pakiety projektowe