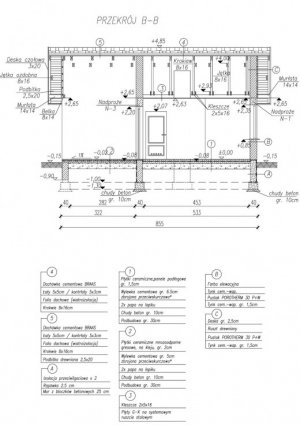
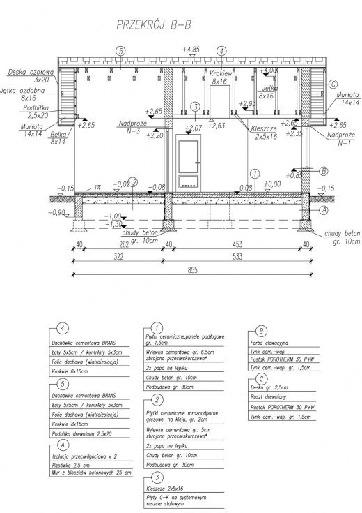
Technologia tradycyjna , ściany zewnętrzne murowane grubości 30 cm, działowe gr. 12 cm. Wszystkie ściany wykonane z pustaków ceramicznych "POROTHERM". Konstrukcja więźby dachowej drewniana, pokrycie dachówka ceramiczna. Istnieje mozliwośc adaptacji obiektu na budynek całoroczny - docieplenie warstwą styropianu gr. 10 cm.
Projekt dostępny również jako CAŁOROCZNY!!! Cena projektu w wersji całorocznej- 1900zł. Ze względu na docieplenie budynku do każdego wymiaru widocznego na rzucie należy dodać 20cm. "Hawana" Prosty, estetyczny, funkcjonalny domek letniskowy. Od frontu zdobią go drewniane okiennice, a także pergola, tworząca od wiosny do jesieni uroczą, zieloną ścianę sporej werandy. Zgrabną bryłę domku nakrywa szary spadzisty dach. Ciepła kremowa barwa ścian i sporo drewnianych elementów wykończeniowych (m.in. pod spadem dachu na bocznych elewacjach) sprawiają, że domek emanuje niezwykłym ciepłem, obiecując miłe chwile w przytulnym wnętrzu. Centralnym pomieszczeniem w Hawanie jest obszerny, ciekawie rozplanowany pokój dzienny, z którego wychodzi się na werandę. Wydzielono w nim funkcjonalne kąciki: jadalny, wypoczynkowy i oczywiście wygodny aneks kuchenny. Pomieszczenie to wraz z sypialnią, łazienką i wiatrołapem tworzy idealne wnętrze letniego domku. Projekt składa się z części architektonicznej, konstrukcyjnej, wewnętrznych instalacji wod.-kan, c. o. i elektrycznej. W projekcie załączone są podstawowe zestawienie stali, drewna i stolarki okienno-drzwiowej. Do projektu dołączamy bezpłatną zgodę na wprowadzenie zmian, oświadczenie projektantów o wykonaniu projektu zgodnie z obowiązującymi normami i przepisami oraz kserokopie uprawnień projektantów wraz z aktualnym wpisem do izby. W przypadku zamówienia projektu w technologii lekkiej, drewnianej konstrukcji szkieletowej, powierzchnia użytkowa budynku jest o około 7% większa.