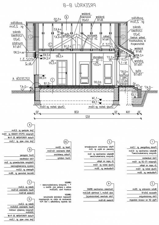
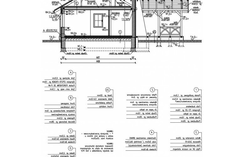
Technologia tradycyjna , ściany zewnętrzne murowane grubości 30 cm + 10 cm styropian, ściany wewnętrzne (nośne) gr. 25 cm i działowe gr. 12 cm. Wszystkie ściany wykonane z pustaków ceramicznych POROTHERM. Konstrukcja więźby dachowej drewniana, pokrycie dachówka ceramiczna.
Projekt dostępny również jako CAŁOROCZNY!!!
"La Lora 2 Małe jest piękne chciałoby się powiedzieć na widok tego zgrabnego domku. Idealne proporcje, niewielkie rozmiary, przyjazna sylwetka. La Lora z pewnością budzi zaufanie. Znakomicie spisuje w roli całorocznego gniazdka dla niewielkiej rodziny, ale równie dobrze może być traktowany jako letniskowa "odskocznia". Dom jest wyjątkowy także ze względu na starannie dobrana kolorystykę ciepły beż elewacji, równie ciepły brąz drewnianych wykończeń oraz miękkie szarości dachówki, kamiennych podmurówek, schodków i efektownego komina tworzą oryginalną kompozycję estetyczną. Małe jest nie tylko piękne, a w dodatku i przytulne. Wnętrze domu kryje wszystko, co potrzebne, by mieszkać komfortowo i wygodnie. Przestronny pokój dzienny, z którego przez niewielki taras można wyjść prosto do ogrodu, obiecuje spokojny relaks, a połączona z kuchnią jadalnia to miejsce, które ma szanse stać się sercem rodzinnego ogniska, skupiając domowników przy wspólnych posiłkach. Oprócz sypialni i łazienki znalazło się również miejsce na niewielką garderobę. Projekt składa się z części architektonicznej, konstrukcyjnej, wewnętrznych instalacji wod.-kan, c. o. i elektrycznej. W projekcie załączone są podstawowe zestawienie stali, drewna i stolarki okienno-drzwiowej. Do projektu dołączamy bezpłatną zgodę na wprowadzenie zmian, oświadczenie projektantów o wykonaniu projektu zgodnie z obowiązującymi normami i przepisami oraz kserokopie uprawnień projektantów wraz z aktualnym wpisem do izby. W przypadku zamówienia projektu w technologii lekkiej, drewnianej konstrukcji szkieletowej, powierzchnia użytkowa budynku jest o około 7% większa.