Dane techniczne
- Powierzchnia użytkowa 83.83 m²
- Powierzchnia zabudowy 100.00 m²
- Kubatura 530.00 m³
- Kąt nachylenia dachu 30.00°
- Pracownia Kup projekt
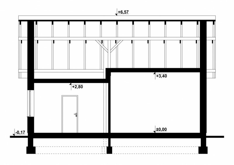
Technologia budowy
Budynek wykonany w technologii tradycyjnej Ściany murowane z bloczków z betonu komórkowego grubości 36,5cm. Komin z cegły ceramicznej pełnej. Więźba dachowa dwuspadowa, drewniana, pokryta dachówką ceramiczną.
Opis
PROJEKT:
Projekt budynku parterowego, niepodpiwniczonego z dwoma pomieszczeniami gospodarczymi i łazienką. Do projektu dołączone jest zestawienie: stali, więźby dachowej oraz stolarki drzwiowej i okiennej, jak równieżbezpłatna zgoda na dokonanie zmian.
Dbamy o swoich Klientów, jak nikt inny!
Do każdego projektu zakupionego za pośrednictwem serwisu kreoDOM.pl otrzymasz książeczkę z rabatami na zakupy w firmach Komfort, Fachowiec, Domino Łazienki, Komandor, Witek Home i innych. Książeczka na pewno okaże się przydatna podczas urządzania Twojego wymarzonego domu!
Książeczka z rabatami do takich firm jak: Komfort, Domino Łazienki, Fachowiec, Vox, Komandor, Witek Home i innych
Gwarancja
bezpiecznych zakupów
Dodatkowe pakiety projektowe