Dane techniczne
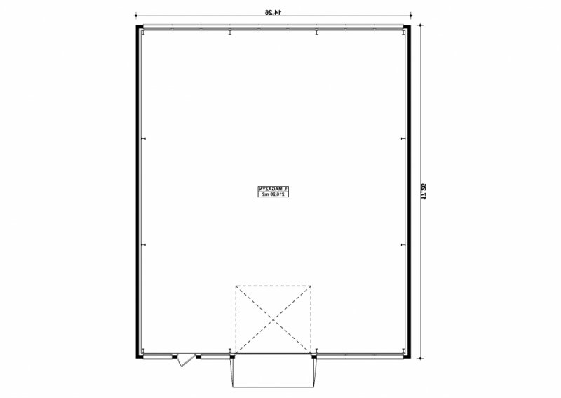
- Powierzchnia użytkowa 216.20 m²
- Powierzchnia zabudowy 246.13 m²
- Kubatura 1852.50 m³
- Kąt nachylenia dachu 16.00°
- Wysokość budynku 8.76 m
- Pracownia Kup projekt
Technologia budowy
Budynek konstrukcji stalowej. Ściany z płyty warstwowej. Brama o wymiarach 4,00x3,50m. Więźba dachowa dwuspadowa, stalowa, pokryta płytą warstwową.
Opis
PROJEKT:
Projekt budynku magazynowego, parterowego, niepodpiwniczonego. Do projektu dołączone jest zestawienie: stali, stolarki drzwiowej i okiennej, jak również bezpłatna zgoda na dokonanie zmian.
Dbamy o swoich Klientów, jak nikt inny!
Do każdego projektu zakupionego za pośrednictwem serwisu kreoDOM.pl otrzymasz książeczkę z rabatami na zakupy w firmach Komfort, Fachowiec, Domino Łazienki, Komandor, Witek Home i innych. Książeczka na pewno okaże się przydatna podczas urządzania Twojego wymarzonego domu!
Książeczka z rabatami do takich firm jak: Komfort, Domino Łazienki, Fachowiec, Vox, Komandor, Witek Home i innych
Gwarancja
bezpiecznych zakupów
Dodatkowe pakiety projektowe