Dane techniczne
- Powierzchnia użytkowa 188.16 m²
- Powierzchnia zabudowy 204.29 m²
- Kubatura 567.00 m³
- Kąt nachylenia dachu 42.00°
- Powierzchnia dachu 330.00 m²
- Wysokość budynku 7.97 m
- Min. wymiary działki 16.25x17.80 m
- Garaż 82.24 m²
- Pracownia LK & Projekt
Technologia budowy
- Ściany zewnętrzne: z pustaków ceramicznych 'Porotherm 50 P+W' firmy 'Wienerberger' o gr.50 cm
- Ściany fundamentowe: betonowe o gr.38 cm ocieplone styropianem 'Gold fundament' firmy Termo Organika gr.12 cm
- Ławy fundamentowe: żelbetowe
- Ściany wewnętrzne: z pustaków ceramicznych 'Porotherm P+W' gr. 25, 11.5 cm firmy Wienerberger
- Strop: żelbetowy
- Konstrukcja dachu: drewniana, ocieplona wełną mineralną firmy Rockwool gr. 30cm
- Pokrycie dachu: dachówką ceramiczną 'Koramic' firmy Wienerberger
- Elewacje: wykończone tynkiem silikonowym cokoły obłożone płytkami klinkierowymi
- Okna i drzwi balkonowe: PVC firmy Oknoplast
- Sposób ogrzewania: zasilanie CO z budynku mieszkalnego
- Wentylacja: grawitacyjna
- Stan na kwartał: IV 2012 zł.
- Roboty budowlane stanu zerowego: 30 175.00 zł.
- Stan surowy zadaszony: 169 674.48 zł.
- Stolarka: 31 207.51 zł.
- Roboty budowlane stanu wykończeniowego: 126 307.69 zł.
- Instalacje: 57 200.00 zł.
- Koszt budowy ogółem (bez VAT): 414 564.68 zł.
Opis
Budynek gospodarczo-mieszkalny, z garażem dwustanowiskowym.
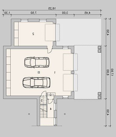
Rzuty
- Garaż 82,24 m2
- Pomieszczenie gospodarcze 25,99 m2
- Pokój (80,33) 55,58 m2
- Łazienka (13,53) 5,90 m2
- Garderoba (13,58) 5,90 m2
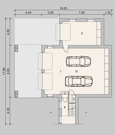
Rzuty
- Garaż 82,24 m2
- Pomieszczenie gospodarcze 25,99 m2
- Pokój (80,33) 55,58 m2
- Łazienka (13,53) 5,90 m2
- Garderoba (13,58) 5,90 m2
Dbamy o swoich Klientów, jak nikt inny!
Do każdego projektu zakupionego za pośrednictwem serwisu kreoDOM.pl otrzymasz książeczkę z rabatami na zakupy w firmach Komfort, Fachowiec, Domino Łazienki, Komandor, Witek Home i innych. Książeczka na pewno okaże się przydatna podczas urządzania Twojego wymarzonego domu!
Książeczka z rabatami do takich firm jak: Komfort, Domino Łazienki, Fachowiec, Vox, Komandor, Witek Home i innych
Gwarancja
bezpiecznych zakupów
Dodatkowe pakiety projektowe
- Kosztorys inwestorski cena ustalana indywidualnie
- Kolektory słoneczne cena ustalana indywidualnie
- Kominek z DGP cena ustalana indywidualnie
- Wentylacja mechaniczna z rekuperacją cena ustalana indywidualnie
- Pompa ciepła cena ustalana indywidualnie