Dane techniczne
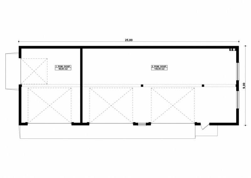
- Powierzchnia użytkowa 203.79 m²
- Powierzchnia zabudowy 225.00 m²
- Kubatura 1250.00 m³
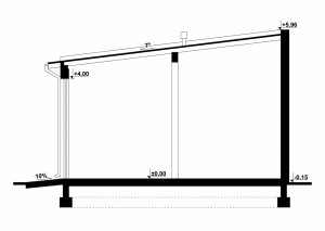
- Kąt nachylenia dachu 7.00°
- Wysokość budynku 5.96 m
- Pracownia Kup projekt
Technologia budowy
Budynek wykonany w technologii tradycyjnej. Ściany warstwowe grubości 29cm, murowane z z pustaków ceramicznych „MAX” grubości 19cm, ocieplone styropianem grubości 10cm. Ściany wewnętrzne z pustaków ceramicznych „MAX” grubości 25cm .Bramy o wymiarach 3,00x3,00m 5,00x4,00m. Komin z cegły ceramicznej pełnej. Słupy i podciągi żelbetowe. Więźba dachowa jednospadowa, drewniana, pokryta blachą trapezową.
Opis
PROJEKT:
Projekt budynku parterowego, niepodpiwniczonego, z dwoma pomieszczeniami gospodarczymi. Do projektu dołączone jest zestawienie: stali, więźby dachowej oraz stolarki drzwiowej i okiennej, jak równieżbezpłatna zgoda na dokonanie zmian.
Dbamy o swoich Klientów, jak nikt inny!
Do każdego projektu zakupionego za pośrednictwem serwisu kreoDOM.pl otrzymasz książeczkę z rabatami na zakupy w firmach Komfort, Fachowiec, Domino Łazienki, Komandor, Witek Home i innych. Książeczka na pewno okaże się przydatna podczas urządzania Twojego wymarzonego domu!
Książeczka z rabatami do takich firm jak: Komfort, Domino Łazienki, Fachowiec, Vox, Komandor, Witek Home i innych
Gwarancja
bezpiecznych zakupów
Dodatkowe pakiety projektowe