Dane techniczne
- Powierzchnia użytkowa 100.00 m²
- Powierzchnia zabudowy 92.40 m²
- Kubatura 547.00 m³
- Kąt nachylenia dachu 40.00°
- Wysokość budynku 8.06 m
- Min. wymiary działki 16.60x19.00 m
- Garaż 19.30 m²
- Pracownia Krajobrazy
Technologia budowy
Opis
Dom Murano S to popularny projekt z poddaszem użytkowym w stylizacji ”by SONIA”. Śmiała, elegancka kolorystyka z fragmentami ścian z ciemnym tynkiem doskonale współgra z fakturą klinkierowych okładzin i nowoczesnymi detalami szklanych balustrad. Atutem domu jest także prosta bryła z dachem dwuspadowym i z tanią konstrukcją, co umożliwia jego realizację także przy ograniczonym budżecie. Wnętrze podzielono na część dzienną na parterze oraz nocną z trzema sypialniami, łazienką i garderobą na poddaszu. W przyziemiu znalazł się też garaż jednostanowiskowy, pomieszczenie gospodarcze z drzwiami na zewnątrz oraz miejsca na szafy w strefie wejściowej. Dokumentacja dostępna jest w wersji standardowej oraz w lustrzanej. Projekt przewiduje ściany zewnętrzne wykonane z bloczków gazobetonowych z dociepleniem. Fragmenty ścian okładane płytkami klinkierowymi albo wariantowo tynkowane. Strop gęstożebrowy. Pokrycie dachu można zastosować dowolne: dachówkę cementową albo ceramiczną lub też inny materiał wybrany na etapie adaptacji. Dopuszcza się wprowadzenie zmian wszystkich materiałów na dowolnie wybrane przez inwestora.
Rzuty
1. wiatrołap z gard. 6.2m2
2. hall 9.1m2
3. p. dzienny z kuchnią
i spiżarnią 30.5m2
4. wc 1.5m2
5. pom. gosp. 6.2m2
6. garaż 19.3m2
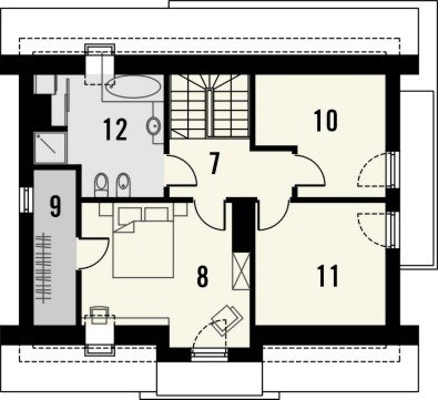
7. hall 4.8m2
8. pokój 14.5m2
9. strych
10. pokój 8.6m2
11. pokój 10.1m2
12. łazienka 8.5m2
Rzuty
1. wiatrołap z gard. 6.2m2
2. hall 9.1m2
3. p. dzienny z kuchnią
i spiżarnią 30.5m2
4. wc 1.5m2
5. pom. gosp. 6.2m2
6. garaż 19.3m2
7. hall 4.8m2
8. pokój 14.5m2
9. strych
10. pokój 8.6m2
11. pokój 10.1m2
12. łazienka 8.5m2
Dbamy o swoich Klientów, jak nikt inny!
Do każdego projektu zakupionego za pośrednictwem serwisu kreoDOM.pl otrzymasz książeczkę z rabatami na zakupy w firmach Komfort, Fachowiec, Domino Łazienki, Komandor, Witek Home i innych. Książeczka na pewno okaże się przydatna podczas urządzania Twojego wymarzonego domu!
Książeczka z rabatami do takich firm jak: Komfort, Domino Łazienki, Fachowiec, Vox, Komandor, Witek Home i innych
Gwarancja
bezpiecznych zakupów
Dodatkowe pakiety projektowe
- Kosztorys inwestorski 950 zł
- Zielony pakiet z pompą ciepła 750 zł
- Aktualizacja do WT2021 850 zł