Dane techniczne
- Powierzchnia użytkowa 131.40 m²
- Powierzchnia zabudowy 120.00 m²
- Kubatura 661.00 m³
- Kąt nachylenia dachu 40.00°
- Wysokość budynku 8.07 m
- Min. wymiary działki 19.20x20.20 m
- Garaż 19.00 m²
- Pracownia Krajobrazy
Technologia budowy
Budynek wykonać można z bloczków gazobetonowych docieplonych styropianem, W projekcie zastosowano strop typu TERIVA i drewnianą więźbę dachową. Pokrycie dachówką ceramiczną lub inną, ściany wykończone tynkiem strukturalnym w kolorze białym, na fragmentach ciemnoszarym i rdzawoczerwonym oraz drewnem. Inne materiały wprowadzić można na etapie adaptacji.
Opis
PIONIER to nowoczesny projekt domu jednorodzinnego z garażem jednostanowiskowym, na tyłach którego ulokowano pomieszczenie gospodarcze. Garaż poprzez kotłownię połączony jest z wiatrołapem. Z holu można przejść do przestronnego pokoju dziennego z jadalnią i otwartą kuchnią z minibarem, ponadto na parterze znalazł się również dodatkowy pokój i wc. Na poddaszu zaprojektowano 3 sypialnie, jedna z nich posiada wydzieloną garderobę. Przewidziano również łazienkę.Okna na piętrze w ścianach szczytowych ozdobione są dość szeroką, rdzawoczerwoną ramą. Ten mocny akcent kolorystyczny ładnie komponuje się z białym i szarym tynkiem, uroku dodają budynkowi również akcenty w drewnie. Projekt dostępny jest także w wersji lustrzanej, a ponadto z garażem i jako bliźniak (PIONIER 2,3).Materiały, z których wykonano budynek, to gazobeton + styropian (ściany), tynk + okładzina z drewna (wykończenie ścian), strop TERIVA , drewno (więźba), dachówka ceramiczna (pokrycie dachu). Na etapie adaptacji zastosować można inne materiały.
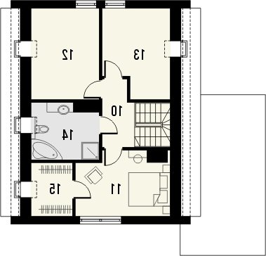
Rzuty
1. wiatrołap 4.0m2
2. hall 5.9m2
3.pokój dzienny
z jadalnią 37.4m2
4. kuchnia 9.8m2
5. pokój 10.3m2
6. wc 1.5m2
7.pom. gospodarcze 5.3m2
8.pom. gospodarcze 4.0m2
9. garaż 19.0m2
10. hall 4.8m2
11. pokój 12.6m2
12. pokój 12.8m2
13. pokój 11.3m2
14. łazienka 7.5m2
15. garderoba 4.2m2
Rzuty
1. wiatrołap 4.0m2
2. hall 5.9m2
3.pokój dzienny
z jadalnią 37.4m2
4. kuchnia 9.8m2
5. pokój 10.3m2
6. wc 1.5m2
7.pom. gospodarcze 5.3m2
8.pom. gospodarcze 4.0m2
9. garaż 19.0m2
10. hall 4.8m2
11. pokój 12.6m2
12. pokój 12.8m2
13. pokój 11.3m2
14. łazienka 7.5m2
15. garderoba 4.2m2
Dbamy o swoich Klientów, jak nikt inny!
Do każdego projektu zakupionego za pośrednictwem serwisu kreoDOM.pl otrzymasz książeczkę z rabatami na zakupy w firmach Komfort, Fachowiec, Domino Łazienki, Komandor, Witek Home i innych. Książeczka na pewno okaże się przydatna podczas urządzania Twojego wymarzonego domu!
Książeczka z rabatami do takich firm jak: Komfort, Domino Łazienki, Fachowiec, Vox, Komandor, Witek Home i innych
Gwarancja
bezpiecznych zakupów
Dodatkowe pakiety projektowe
- Kosztorys inwestorski 950 zł
- Zielony pakiet z pompą ciepła 750 zł
- Aktualizacja do WT2021 850 zł