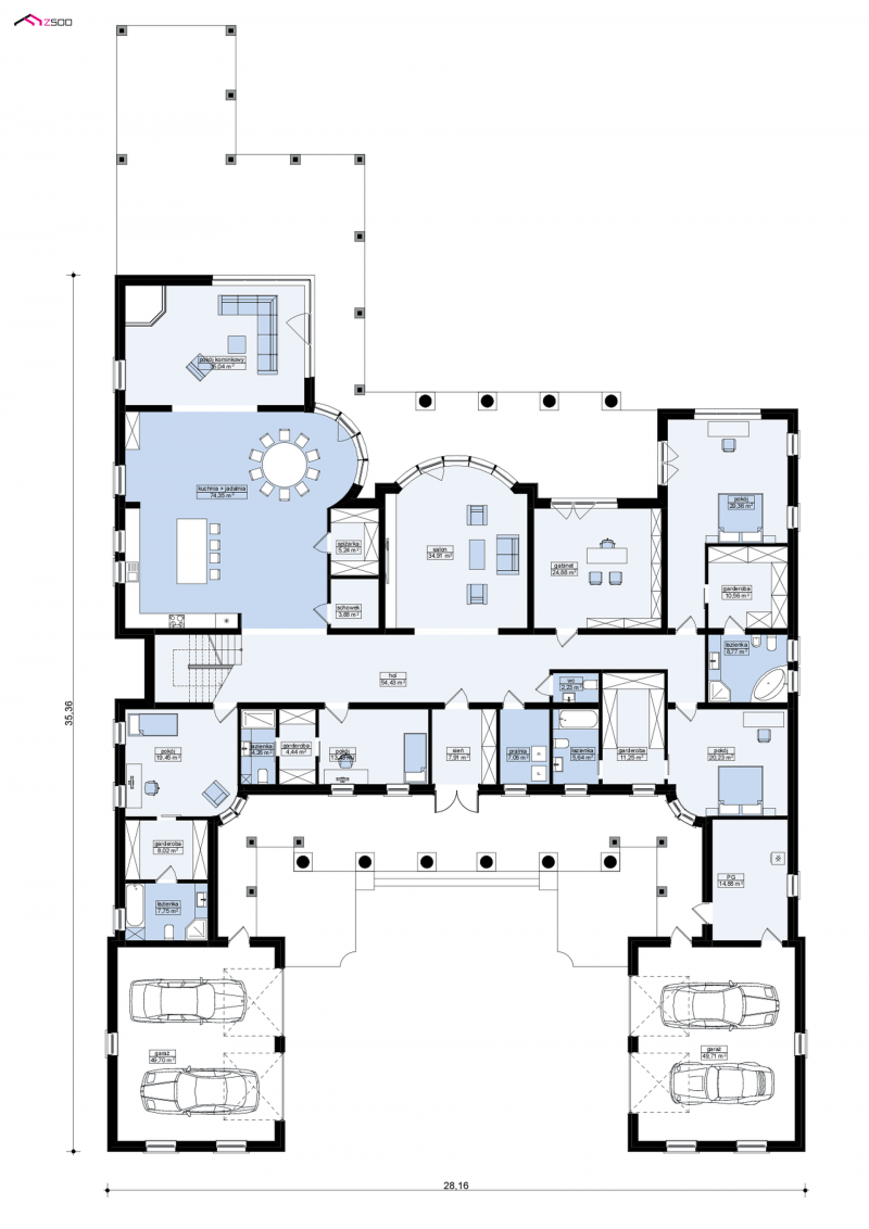
Rezydencja ziemska „Camellia Manor” łączy tradycyjny, luksusowy projekt domu z nowoczesnością rozwiązań technologicznych. Na 624,77 m2 powierzchni znajdują się aż cztery sypialnie, cztery łazienki i taka sama ilość miejsc garażowych, jak również przestronny salon oraz pokoje wypoczynkowe i rozrywkowe.
Główną część rezydencji „Camellia Manor” stanowi wspaniały salon z dwupoziomową przeszkloną ścianą oraz dwustronnym, wysokim kominkiem. Ponad przylegającą jadalnią znajduje się ozdobne sklepienie sufitowe, wsparte drewnianymi kolumnami i łukami. Pod schodami umiejscowiono spiżarkę na wino, która wraz z mieszczącym się nieopodal pomieszczeniem dla kamerdynera, dopełniają przestronną i znamienitą kuchnię. W kuchni zaś zaprojektowano dwie wyspy. Jedna to blaty przeznaczone do konsumowania posiłków, druga zaś, nieopodal pokoju rekreacyjnego, znajdująca się na otwartej przestrzeni, stanowi kącik dla podejmowania gości.
Cała przestrzeń napełniona jest światłem i otwarta na loggię dzięki suwanym ścianom ze szkła. Przestronny zespół bogatych, połączonych pomieszczeń tworzących całość wraz z mnóstwem udogodnień, znakomicie służy właścicielom.
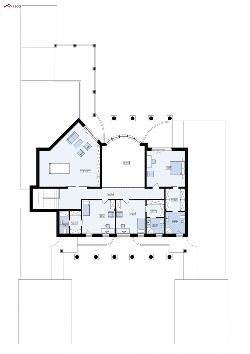
Niższe piętro jest idealne dla starszego pokolenia. Dwie duże sypialnie na drugim piętrze stwarzają atmosferę prywatności dla odwiedzających przyjaciół albo dzieci. Wytworny gabinet, i przestronna świetlica, aneks kuchenny, pokój rozrywki i pokój rodzinny to esencja stylu i luksusu jaki można znaleźć w projekcie „Camellia Manor”.
Rezydencja Ziemska „Camellia Manor” została zaprojektowana specjalnie z myślą o rodzinie. Uwzględnia również nacisk na trwałość i praktyczność ekologicznego i energooszczędnego budownictwa.
W cenie projektu są możliwe do wprowadzenia zmiany w zakresie ścian wewnętrznych i układu pomieszczeń.
Z500 jest oficjalnym i jednym autoryzowanym przedstawicielem Sater Design Collection, Inc