Dane techniczne
- Powierzchnia użytkowa 262.50 m²
- Powierzchnia zabudowy 183.80 m²
- Kubatura 810.04 m³
- Kąt nachylenia dachu 5.00°
- Powierzchnia dachu 167.00 m²
- Wysokość budynku 8.35 m
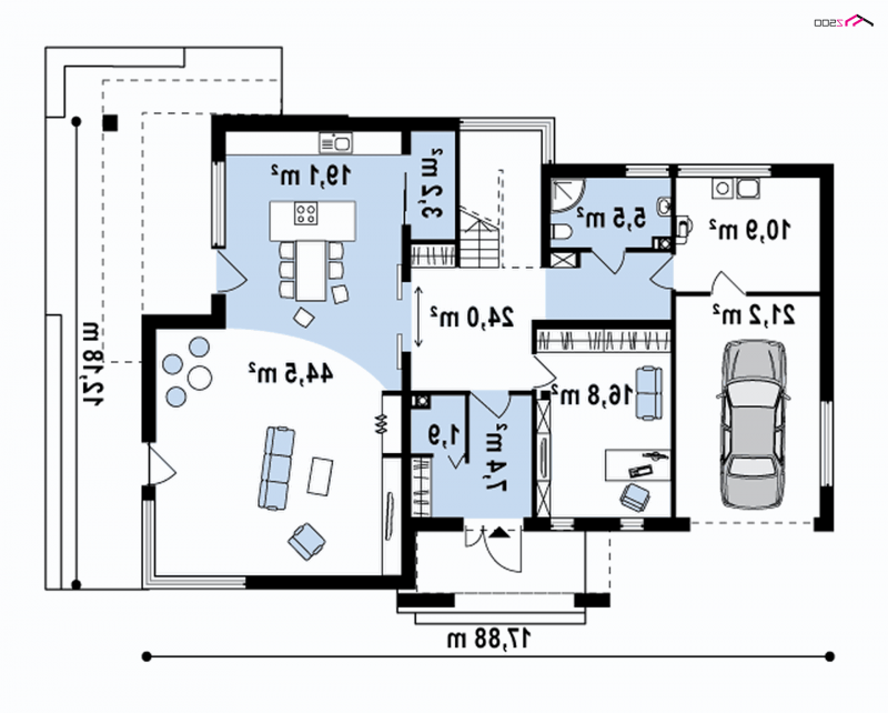
- Min. wymiary działki 20.18x25.88 m
- Garaż 21.20 m²
- Pracownia Studio Z500
Technologia budowy
Ściany: gazobeton, ceramika, silikaty
Dach: papa, folia, blacha
Strop: betonowy gęstożebrowy Teriva
Opis
Zx15 jest nowoczesnym piętrowym domem o unikalnych kubicznych bryłach przenikających się wzajemnie. Naturalne materiały na elewacji kontrastują z czystą bielą ścian. Reprezentacyjna i nowoczesna klatka schodowa z narożnym oknem stanowi główny element holu, zapewniając doświetlenie wnętrza.
Część dzienna stanowi obszerny salon połączony z kuchnią i jadalnią. Ogród i przeszklenia stanowią przedłużenie strefy dziennej. Kominek w salonie sąsiaduje z pomieszczeniem, które można wykorzystać na nowoczesne instalacje energooszczędne. W drugim skrzydle parteru zaprojektowano część gospodarczą z dostępem do garażu oraz pokój i łazienkę.
Klatką schodową wchodzimy na piętro, które spełnia przede wszystkim funkcję sypialno-wypoczynkową. Na piętrze znajdziemy trzy jasne i obszerne sypialnie oraz główną łazienkę i garderobę. Duża sypialnia ma osobną łazienkę, garderobę i wyjście taras osłonięty pergolą,
Dbamy o swoich Klientów, jak nikt inny!
Do każdego projektu zakupionego za pośrednictwem serwisu kreoDOM.pl otrzymasz książeczkę z rabatami na zakupy w firmach Komfort, Fachowiec, Domino Łazienki, Komandor, Witek Home i innych. Książeczka na pewno okaże się przydatna podczas urządzania Twojego wymarzonego domu!
Książeczka z rabatami do takich firm jak: Komfort, Domino Łazienki, Fachowiec, Vox, Komandor, Witek Home i innych
Gwarancja
bezpiecznych zakupów
Dodatkowe pakiety projektowe
- Kosztorys inwestorski 249,00zł
- Zestawienie materiałów 57,00 zł
- Wentylacja mechaniczna z rekuperacja 550,00 zł
- Pompa ciepła 250,00 zł
- Kotłownia na paliwo stałe zapytaj o dostępność
- Ogrzewanie podłogowe 350,00 zł
- Kolektory słoneczne 250,00 zł
- Przydomowa oczyszczalnia ścieków 350,00 zł
- Wersja elektroniczna projektu 197,00 zł
- Dodatkowy egzemplarz projektu 249,00 zł
ustalana telefonicznie
265.18 m²