Dane techniczne
- Powierzchnia użytkowa 112.06 m²
- Powierzchnia zabudowy 148.03 m²
- Kubatura 343.14 m³
- Kąt nachylenia dachu 20.00°
- Powierzchnia dachu 213.94 m²
- Wysokość budynku 6.12 m
- Min. wymiary działki 20.50x25.30 m
- Pracownia Archipelag
Technologia budowy
Dom zaprojektowany w technologii murowej ze stropem gęstożebrowym. Dach o konstrukcji drewnianej pokryty dachówką cementową. Elewacje wykończono tynkiem mineralnym oraz okładziną drewnianą. Stolarka okienna drewniana lub PCV.
Opis
Dom parterowy, niepodpiwniczony. Przeznaczony dla 3-4-osobowej rodziny. Strefę dzienną tworzą kuchnia ze spiżarnią, jadalnia, przestronny pokój dzienny oraz toaleta. W strefie nocnej znajdują się trzy sypialnie i obszerna łazienka. Ponadto zaprojektowano duże pomieszczenie gospodarcze z kotłem grzewczym. Jasny podział funkcjonalny i wyraźne oddzielenie stref dziennej i nocnej wpływa na wygodę użytkowania. Bob II jest przykładem harmonijnego połączenia tradycyjnej formy oraz nowoczesnych detali w wykończeniu elewacji. Jego prosta bryła z dwuspadowym dachem wpływają na niskie koszty budowy. Dzięki odpowiednio zaprojektowanym przeszkleniom dom ten zyskuje otwarty i słoneczny charakter. Istnieje możliwość zmiany kąta nachylenia dachu do 30° oraz adaptacji poddasza na strych i podpiwniczenia budynku.
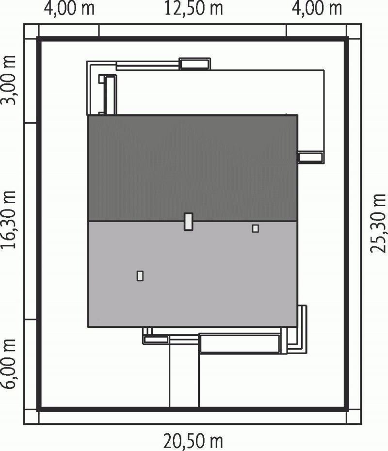
Rzuty
PARTER
- Wiatrołap 2.51 m2
- Hol 10.15 m2
- Kuchnia 9.91 m2
- Spiżarnia 2.24 m2
- Pokój dzienny jadalnia 33.05 m2
- Łazienka 2.53 m2
- Korytarz 6.44 m2
- Sypialnia 16.50 m2
- Sypialnia 10.33 m2
- Sypialnia 10.33 m2
- Łazienka 8.07 m2
- Kotłownia 5.22 m2
Rzuty
PARTER
- Wiatrołap 2.51 m2
- Hol 10.15 m2
- Kuchnia 9.91 m2
- Spiżarnia 2.24 m2
- Pokój dzienny jadalnia 33.05 m2
- Łazienka 2.53 m2
- Korytarz 6.44 m2
- Sypialnia 16.50 m2
- Sypialnia 10.33 m2
- Sypialnia 10.33 m2
- Łazienka 8.07 m2
- Kotłownia 5.22 m2
Dbamy o swoich Klientów, jak nikt inny!
Do każdego projektu zakupionego za pośrednictwem serwisu kreoDOM.pl otrzymasz książeczkę z rabatami na zakupy w firmach Komfort, Fachowiec, Domino Łazienki, Komandor, Witek Home i innych. Książeczka na pewno okaże się przydatna podczas urządzania Twojego wymarzonego domu!
Książeczka z rabatami do takich firm jak: Komfort, Domino Łazienki, Fachowiec, Vox, Komandor, Witek Home i innych
Gwarancja
bezpiecznych zakupów
Dodatkowe pakiety projektowe
- Kosztorys inwestorski cena ustalana indywidualnie
- Wentylacja mechaniczna z rekuperacją 700,00 zł
- Wentylacja mechaniczna + GPWC 700,00 zł
- Kolektory Słoneczne 400,00 zł
- Panele Fotowoltaiczne 400,00 zł
- Pompa Ciepła 500,00 zł
- Kominek z DGP 400,00 zł
- Biologiczna oczyszczalnia ścieków 150,00 zł
- Centralny Odkurzacz 300,00 zł
- Szambo przydomowe 200,00 zł
- Dodatkowy egzemplarz projektu 150,00 zł