Dane techniczne
- Powierzchnia użytkowa 82.61 m²
- Powierzchnia zabudowy 118.52 m²
- Kubatura 253.93 m³
- Kąt nachylenia dachu 30.00°
- Powierzchnia dachu 177.30 m²
- Wysokość budynku 6.72 m
- Min. wymiary działki 21.20x17.30 m
- Pracownia Archipelag
Technologia budowy
Dom zaprojektowany w technologii murowej ze stropem gęstożebrowym. Dach o konstrukcji drewnianej pokryty dachówką płaską lub inną o podobnych parametrach. Więźba dachowa dostępna również w systemie prefabrykacji drewnianej. Elewacje wykończono tynkiem mineralnym, okładziną drewnianą. Cokół kamienny. Stolarka okienna drewniana lub PCV.
Opis
Dom parterowy, niepodpiwniczony. Przeznaczony dla 2-3-osobowej rodziny. Strefę dzienną tworzy salon z kominkiem, kuchnia oraz wydzielona jadalnia. Dodatkowo, dom posiada dużą łazienkę oraz praktyczne pomieszczenie gospodarcze z kotłem grzewczym, w którym wygospodarować można również pralnię lub spiżarnię. Strefa nocna to dwie wygodne sypialnie. Karmela to dom, który powstał z myślą o inwestorach, którzy cenią wygodę i klasyczne piękno. Zwarta bryła i prosty dwuspadowy dach sprawiają, że dom jest ekonomiczny w realizacji i późniejszej eksploatacji. Na stosunkowo niewielkiej powierzchni udało się zaprojektować komfortowy układ funkcjonalny. Z zewnątrz budynek prezentuje się równie urzekająco – ciepła kolorystyka elewacji w parze z elegancją detali podkreślają przytulny charakter czarującej Karmeli. Istnieje możliwość: - zbliźniaczenia - wykonania domu dwulokalowego
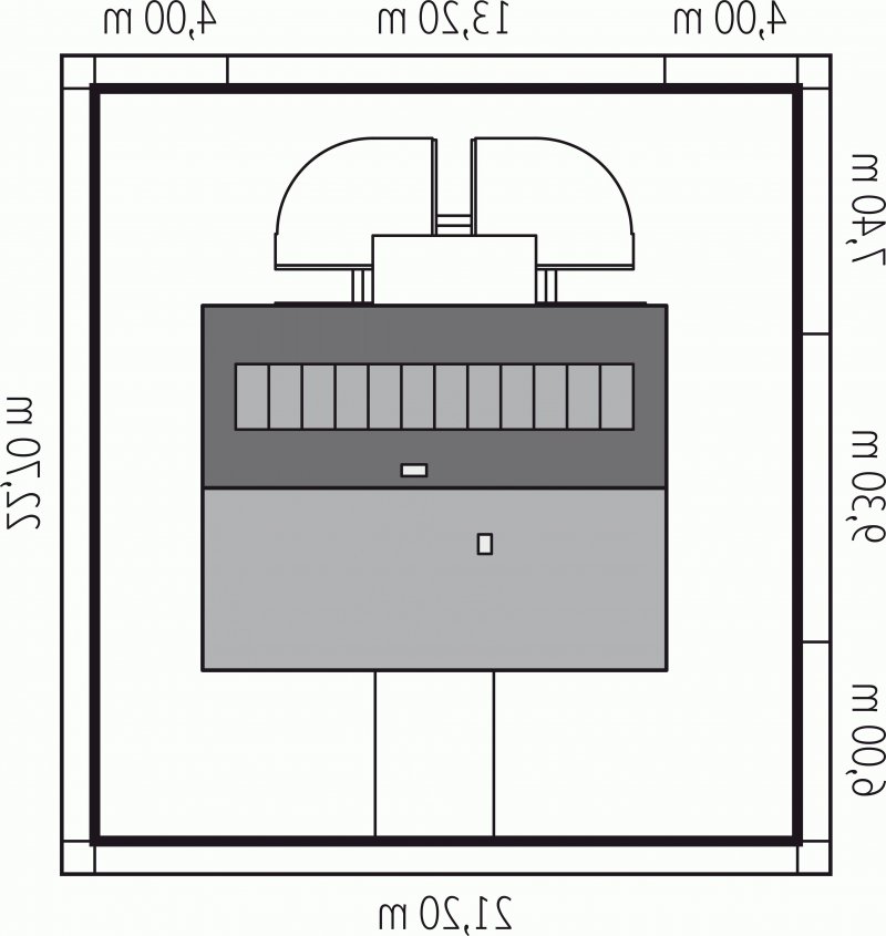
Rzuty
PARTER
- Wiatrołap 2.93 m2
- Hol 7.73 m2
- Kuchnia 8.03 m2
- Jadalnia 7.29 m2
- Pokój dzienny 25.26 m2
- Sypialnia 14.66 m2
- Sypialnia 10.38 m2
- Łazienka 6.33 m2
- Kotłownia 3.86 m2
Rzuty
PARTER
- Wiatrołap 2.93 m2
- Hol 7.73 m2
- Kuchnia 8.03 m2
- Jadalnia 7.29 m2
- Pokój dzienny 25.26 m2
- Sypialnia 14.66 m2
- Sypialnia 10.38 m2
- Łazienka 6.33 m2
- Kotłownia 3.86 m2
Dbamy o swoich Klientów, jak nikt inny!
Do każdego projektu zakupionego za pośrednictwem serwisu kreoDOM.pl otrzymasz książeczkę z rabatami na zakupy w firmach Komfort, Fachowiec, Domino Łazienki, Komandor, Witek Home i innych. Książeczka na pewno okaże się przydatna podczas urządzania Twojego wymarzonego domu!
Książeczka z rabatami do takich firm jak: Komfort, Domino Łazienki, Fachowiec, Vox, Komandor, Witek Home i innych
Gwarancja
bezpiecznych zakupów
Dodatkowe pakiety projektowe
- Kosztorys inwestorski cena ustalana indywidualnie
- Wentylacja mechaniczna z rekuperacją 700,00 zł
- Wentylacja mechaniczna + GPWC 700,00 zł
- Kolektory Słoneczne 400,00 zł
- Panele Fotowoltaiczne 400,00 zł
- Pompa Ciepła 500,00 zł
- Kominek z DGP 400,00 zł
- Biologiczna oczyszczalnia ścieków 150,00 zł
- Centralny Odkurzacz 300,00 zł
- Szambo przydomowe 200,00 zł
- Dodatkowy egzemplarz projektu 150,00 zł