Dane techniczne
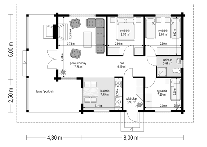
- Powierzchnia użytkowa 63.46 m²
- Powierzchnia zabudowy 70.25 m²
- Kubatura 266.97 m³
- Kąt nachylenia dachu 22.00°
- Powierzchnia dachu 140.00 m²
- Wysokość budynku 4.75 m
- Min. wymiary działki 18.80x15.50 m
- Pracownia MG Projekt
Opis
Pogodny Drewniany to mały i ekonomiczny domek z bali drewnianych. Parterowy, niepodpiwniczony, o prostej i wyważonej bryle, dla czteroosobowej rodziny. Może być traktowany zarówno jako dom jednorodzinny, jak i letniskowy. Budynek posiada czytelny i funkcjonalny rozkład pomieszczeń oraz wyraźny ich podział na strefy: dzienną i nocną, co daje poczucie komfortu i wygody. Obszerny zadaszony taras zapewnia możliwość korzystania z zewnętrznego kominka (grila) bez względu na warunki atmosferyczne. Kominek, zlokalizowany w salonie umożliwia rozprowadzenie ciepła po całym domu. Projekt dostępny jest w technologii drewnianej oraz murowanej. Pracownia dysponuje także wersją z poddaszem użytkowym. Każdy z wariantów projektu dostępny jest ponadto w odbiciu lustrzanym. Komplet czterech egzemplarzy zawiera: projekt architektury domu, konstrukcji oraz schematy instalacji wewnętrznych. Na prośbę Inwestora, do projektu dołączamy zgodę na dokonanie zmian według życzenia Klienta.
Dbamy o swoich Klientów, jak nikt inny!
Do każdego projektu zakupionego za pośrednictwem serwisu kreoDOM.pl otrzymasz książeczkę z rabatami na zakupy w firmach Komfort, Fachowiec, Domino Łazienki, Komandor, Witek Home i innych. Książeczka na pewno okaże się przydatna podczas urządzania Twojego wymarzonego domu!
Książeczka z rabatami do takich firm jak: Komfort, Domino Łazienki, Fachowiec, Vox, Komandor, Witek Home i innych
Gwarancja
bezpiecznych zakupów
Dodatkowe pakiety projektowe
- Instalacja fotowoltaiczna 429,00 zł
- Instalacja solarna 429,00 zł
- Klimatyzacja w domu 429,00 zł
- Kosztorys inwestorski 499,00 zł
- Kotłownia na paliwo stałe 429,00 zł
- Kominek z DGP 429,00 zł
- Odkurzacz centralny 429,00 zł
- Ogrzewanie podłogowe 429,00 zł
- Płaszcz wodny 429,00 zł
- Pompa ciepła gruntowa 429,00 zł
- Pompa ciepła powietrzna 429,00 zł
- Projekty altan i grillów ogrodowych 549,00 zł
- Projekty ogrodzeń 499,00 zł
- Wentylacja i kominek 429,00 zł
- Wersja elektroniczna z DWG 499,00 zł