Budynek został zaprojektowany w technologii murowanej ściany jednowarstwowe z bloczka gazobetonowego grubości 36,5cm ze stropem gęstożebrowym. Dach o konstrukcji drewnianej kryty dachówką ceramiczną lub cementową. Elewacje wykonano z tynku strukturalnego, cokół tynkowany lub z cegły klinkierowej. Stolarka okienna drewniana lub PCV.
Sara z garażem jest wygodnym niepodpiwniczonym domem z użytkowym poddaszem i wbudownym garażem jednostanowiskowym, przeznaczonym dla 4-5 osobowej rodziny. Dom ma zwartą bryłę, przekrytą dwuspadowym dachem, co przekłada się na mniejsze koszty realizacji.
Dom może być wybudowany na niewielkiej działce, istnieje możliwość przeprojektowania garażu na dwustanowiskowy, zrealizowania domu w zabudowie bliźniaczej lub szeregowej.
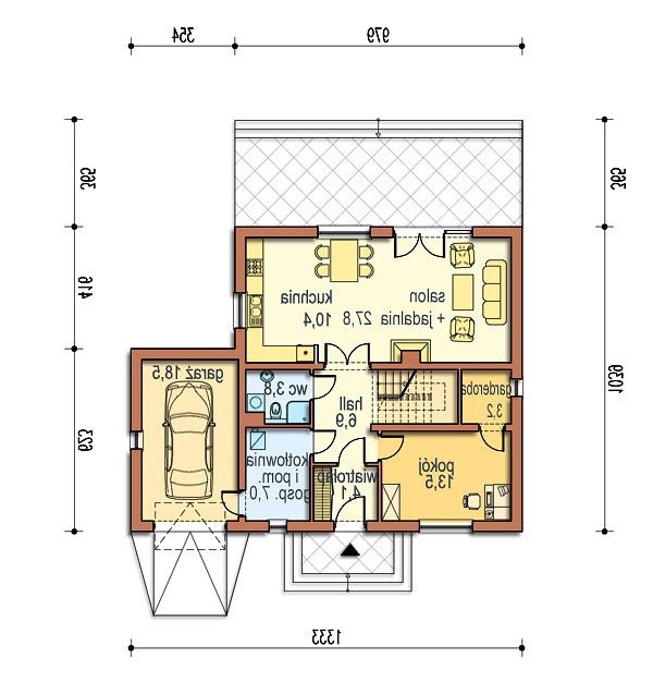
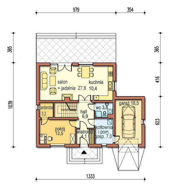
Część dzienna na parterze składa się z wiatrołapu, hallu, gabinetu , otwartej kuchni z jadalnią oraz pokoju dziennego wychodzącego na ogród. Oprócz tego na parterze znajduje się łazienka i kotłownia z wyjściem gospodarczym i garaż.
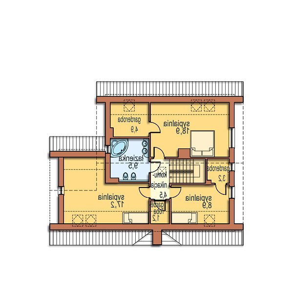
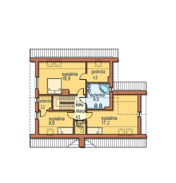
Część nocną na poddaszu tworzą: trzy wygodne sypialnie, hall i duża, wygodna łazienka. Dwie sypialnie mają własne garderoby.