Dane techniczne
- Powierzchnia użytkowa 102.20 m²
- Powierzchnia zabudowy 158.91 m²
- Kubatura 762.00 m³
- Kąt nachylenia dachu 35.00°
- Wysokość budynku 6.97 m
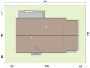
- Min. wymiary działki 24.95x17.92 m
- Garaż 23.80 m²
- Pracownia Archand
Technologia budowy
Fundamenty żelbetowe
Sciany nośne i działowe z pustaków ceramicznych
Strop gęstożebrowy
Konstrukcja dachu drewniana
Dachówka ceramiczna
Opis
Sezam 2 G1 to bardzo ciekawa propozycja domu parterowego przeznaczonego dla 4-5 osobowej rodziny. Dom posiada prostą formę i nieskomplikowaną konstrukcję, co zdecydowanie ułatwi budowę. Mimo niewielkich rozmiarów , dzięki dobrze zagospodarowanej przestrzeni, Sezam 2 będzie bardzo wygodny w użytkowaniu.
Niewątpliwym atutem projektu jest jasny podział na strefę ogólnodostępną i prywatną - przeznaczoną tylko dla mieszkańców.
Dom posiada duży otwarty salon, oraz kuchnię ze spiżarnią.
Nie zapomniano również o pomieszczeniu gospodarczym z wyjściem na ogród, oraz dodatkowej łazience. W wiatrołapie i holu jest miejsce na szafy w zabudowie. W projekcie przewidziano duży garaż z dodatkowym miejscem, np. na narzędzia ogrodnicze i stół warsztatowy.
Dbamy o swoich Klientów, jak nikt inny!
Do każdego projektu zakupionego za pośrednictwem serwisu kreoDOM.pl otrzymasz książeczkę z rabatami na zakupy w firmach Komfort, Fachowiec, Domino Łazienki, Komandor, Witek Home i innych. Książeczka na pewno okaże się przydatna podczas urządzania Twojego wymarzonego domu!
Książeczka z rabatami do takich firm jak: Komfort, Domino Łazienki, Fachowiec, Vox, Komandor, Witek Home i innych
Gwarancja
bezpiecznych zakupów
Dodatkowe pakiety projektowe
- Kosztorys inwestorski 590,00 zł
- 5 egz. Projektu 290,00 zł
- Zamówiony kosztorys razem z projektem 390,00 zł
- 5 egz. Projektu zamówione razem z projektem 190,00 zł