Technologia budowy
Fundamenty żelbetowe, ściany nośne i działowe z pustaków ceramicznych, strop gęstożebrowy, konstrukcja dachu drewniana, dachówka ceramiczna.
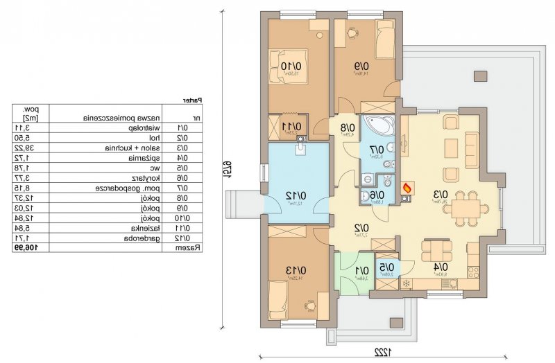
Opis
Szafran 2 to niezwykle komfortowy dom, przeznaczony dla 4-5 osobowej rodziny. Jego wygląd zaprojektowano tak, aby świetnie wpisywał się w każde otoczenie, a zarazem posiadał swój oryginalny i elegancki styl.
Atutem projektu jest jasny podział na strefę dzienną i nocną - przeznaczoną tylko dla mieszkańców. Strefa dzienna to przestronny salon z jadalnią otwartą na kuchnię. Przestrzeń zaplanowano tak, aby znalazło się dostateczne miejsce na duży stół , komplet wypoczynkowy, oraz zestaw kina domowego. W centrum domowego ogniska zlokalizowano kominek.
Kuchnia została zaprojektowana w taki sposób , aby można było zbudować w pełni funkcjonalny ciąg kuchenny, zakończony pionem z zabudowaną kuchenką mikrofalową i piekarnikiem.
Projekt posiada trzy duże pokoje, w tym sypialnie z garderobą, oraz łazienkę z wnęką na pralkę.
Niewątpliwą zaletą domu jest spore pomieszczenie gospodarcze z bezpośrednim wyjściem na ogród - które jest nieodzowne w domach bez garażu. Wymiary pomieszczenia pozwalają bez problemu zorganizować kotłownie na paliwo stałe.
W projekcie zastosowano wyłącznie typowe i sprawdzone rozwiązania, co znacznie ułatwi budowę i zminimalizuje koszty eksploatacji.
Główne zalety projektu to:
salon z jadalnią otwartą na kuchnię
podział na strefę dzienną i nocną
duże pokoje
sypialnia z garderobą
duża łazienka
spiżarnia
duże pom. gospodarcze z wyjściem na ogród
W projekcie zastosowano wyłącznie typowe i sprawdzone rozwiązania technologiczne, co znacznie ułatwi realizację i zminimalizuje koszty eksploatacji.
Energooszczędność
Zaprojektowany budynek jest energooszczędny.
Sumaryczne roczne jednostkowe zapotrzebowanie na nieodnawialną energię pierwotną wynosi:
EP < 95,00 kWh/(m2rok)