Dane techniczne
- Powierzchnia użytkowa 136.91 m²
- Powierzchnia zabudowy 144.20 m²
- Kubatura 652.00 m³
- Kąt nachylenia dachu 40.00°
- Wysokość budynku 7.87 m
- Min. wymiary działki 26.50x16.35 m
- Garaż 39.93 m²
- Pracownia Architeka
Technologia budowy
ŚCIANY WEWNĘTRZNE bloczki gazobetonowe lub pustak ceramiczny / cegła dziurawka
ŚCIANY ZEWNĘTRZNE bloczki gazobetonowe lub pustak ceramiczny + ocieplenie styropian
STROP Teriva
POKRYCIE DACHU dachówka ceramiczna lub blachodachówka
ELEWACJE tynk strukturalny plus okładzina
Opis
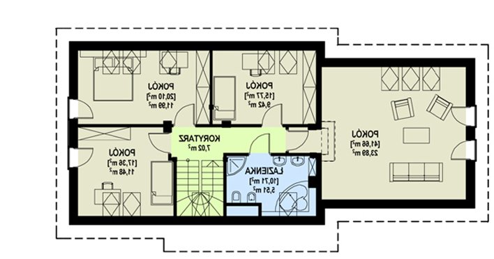
Dom o prostej, zwartej bryle z garażem dwustanowiskowym. Doskonały na działkę z wjazdem od południa jak również od północy. Ekonomiczny w budowie oraz późniejszym użytkowaniu. Niezwykle funkcjonalny. Na parterze wydzielono część dzienną z przestronnym salonem połączonym z jadalnią oraz dodatkowy pokój np. na gabinet, pokój gościnny. Część nocna na poddaszu mieści trzy sypialnie, dużą łazienkę oraz pokój dla domowników. Od strony ogrodu zaprojektowano taras. Całości uroku dodają drewniane elementy elewacji.
Dbamy o swoich Klientów, jak nikt inny!
Do każdego projektu zakupionego za pośrednictwem serwisu kreoDOM.pl otrzymasz książeczkę z rabatami na zakupy w firmach Komfort, Fachowiec, Domino Łazienki, Komandor, Witek Home i innych. Książeczka na pewno okaże się przydatna podczas urządzania Twojego wymarzonego domu!
Książeczka z rabatami do takich firm jak: Komfort, Domino Łazienki, Fachowiec, Vox, Komandor, Witek Home i innych
Gwarancja
bezpiecznych zakupów
Dodatkowe pakiety projektowe
- Kosztorys inwestorski bezpłatnie
- Dodatkowy egzemplarz projektu 250,00 zł