Dane techniczne
- Powierzchnia użytkowa 113.60 m²
- Powierzchnia zabudowy 152.00 m²
- Kubatura 358.50 m³
- Kąt nachylenia dachu 30.00°
- Wysokość budynku 6.90 m
- Min. wymiary działki 22.24x19.04 m
- Pracownia Studio Z500
Technologia budowy
Opis
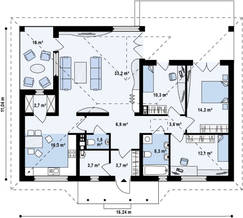
Z185 to prosta i komfortowa propozycja domu parterowego. Bryła domu przekryta jest kopertowym dachem i ubrana w oryginalne dodatki, świetnie podkreśla jego wyjątkowy charakter. Dom zbudowany jest na planie prostokąta dzięki czemu jest tani w budowie oraz ekonomiczny w użytkowaniu.
Przestrzeń w projekcie Z185 jest rozplanowana z myślą o wygodzie przyszłych domowników. Niezwykle przestronny salon jest doskonałym miejscem odpoczynku oraz wieczornego relaksu. Rewelacyjnym pomysłem jest oranżeria która chroni w lecie przed komarami. Pozwala to na bezpośrednie wejście z tarasu, niezbędne podczas letniego grillowania. Na parterze znajdują się także trzy jasne sypialnie. Każda z nich posiada duże okno, które rozświetla i pozwala na swobodne przenikanie promieni słonecznych. Na parterze znajduje się również wygodna i funkcjonalna łazienka oraz mały wc zlokalizowany tuż przy wejściu.Z185 to wyjątkowy projekt domu. Komfortowo rozplanowane pomieszczenia oraz solidna konstrukcja spowodują, że będzie to twoja najlepsza inwestycja.
Dbamy o swoich Klientów, jak nikt inny!
Do każdego projektu zakupionego za pośrednictwem serwisu kreoDOM.pl otrzymasz książeczkę z rabatami na zakupy w firmach Komfort, Fachowiec, Domino Łazienki, Komandor, Witek Home i innych. Książeczka na pewno okaże się przydatna podczas urządzania Twojego wymarzonego domu!
Książeczka z rabatami do takich firm jak: Komfort, Domino Łazienki, Fachowiec, Vox, Komandor, Witek Home i innych
Gwarancja
bezpiecznych zakupów
Dodatkowe pakiety projektowe
- Kosztorys inwestorski 249,00zł
- Zestawienie materiałów 57,00 zł
- Wentylacja mechaniczna z rekuperacja 550,00 zł
- Pompa ciepła 250,00 zł
- Kotłownia na paliwo stałe zapytaj o dostępność
- Ogrzewanie podłogowe 350,00 zł
- Kolektory słoneczne 250,00 zł
- Przydomowa oczyszczalnia ścieków 350,00 zł
- Wersja elektroniczna projektu 197,00 zł
- Dodatkowy egzemplarz projektu 249,00 zł
ustalana telefonicznie
110.82 m²