Dane techniczne
- Powierzchnia użytkowa 125.95 m²
- Powierzchnia zabudowy 214.19 m²
- Kubatura 691.89 m³
- Kąt nachylenia dachu 25.00°
- Wysokość budynku 6.47 m
- Min. wymiary działki 25.64x23.54 m
- Garaż 50.24 m²
- Pracownia Studio Z500
Technologia budowy
Ściany: gazobeton, ceramika, silikaty
Dach: dachówka, blachodachówka
Strop: betonowy gęstożebrowy Teriva
Opis
Z207 to dom parterowy z frontowym wjazdem do garażu. Nowoczesna i charakterystyczna, stonowana kolorystyka elewacji sprawia, że dom jest elegancki i przytulny.
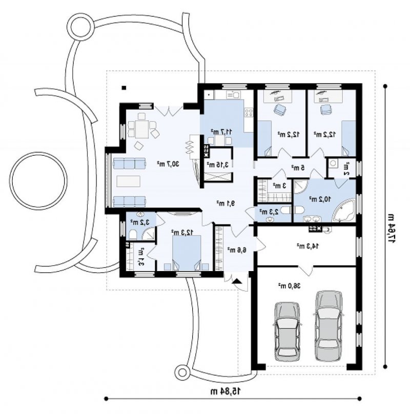
Część dzienna to przestronny salon i jadalnia z wykuszem. Dzięki małemu WC, dostępnemu z głównego holu, goście nie muszą wchodzić do pozostałych stref domu. Znajduje się również przestronna kuchnia, z funkcjonalną spiżarką. Dodatkową zaletą domu jest duże pomieszczenie gospodarcze i dwustanowiskowy garaż. Cześć nocna to dwa wygodne pokoje, duża łazienka z pralnią oraz garderoba. Z głównego holu dostępna jest również przestronna sypialnia rodziców z prywatną łazienką i garderobą. Z207 to dom dla osób poszukujących wyjątkowego projektu. Dzięki urozmaiconej bryle, dom ma ciekawą i miłą dla oka formę , która idealnie wtopi się w każdy krajobraz.
Dbamy o swoich Klientów, jak nikt inny!
Do każdego projektu zakupionego za pośrednictwem serwisu kreoDOM.pl otrzymasz książeczkę z rabatami na zakupy w firmach Komfort, Fachowiec, Domino Łazienki, Komandor, Witek Home i innych. Książeczka na pewno okaże się przydatna podczas urządzania Twojego wymarzonego domu!
Książeczka z rabatami do takich firm jak: Komfort, Domino Łazienki, Fachowiec, Vox, Komandor, Witek Home i innych
Gwarancja
bezpiecznych zakupów
Dodatkowe pakiety projektowe
- Kosztorys inwestorski 249,00zł
- Zestawienie materiałów 57,00 zł
- Wentylacja mechaniczna z rekuperacja 550,00 zł
- Pompa ciepła 250,00 zł
- Kotłownia na paliwo stałe zapytaj o dostępność
- Ogrzewanie podłogowe 350,00 zł
- Kolektory słoneczne 250,00 zł
- Przydomowa oczyszczalnia ścieków 350,00 zł
- Wersja elektroniczna projektu 197,00 zł
- Dodatkowy egzemplarz projektu 249,00 zł