Dane techniczne
- Powierzchnia użytkowa 197.17 m²
- Powierzchnia zabudowy 162.50 m²
- Kubatura 648.00 m³
- Kąt nachylenia dachu 37.00°
- Wysokość budynku 8.31 m
- Min. wymiary działki 23.24x19.64 m
- Garaż 33.18 m²
- Pracownia Studio Z500
Technologia budowy
Ściany: gazobeton, ceramika, silikaty
Dach: dachówka, blachodachówka
Strop: betonowy gęstożebrowy Teriva
Opis
Z272 to wyjątkowy projekt domu z poddaszem użytkowym i garażem dwustanowiskowym. Starannie dobrane dodatki oraz drewniane elementy elewacji nadają mu elegancki wygląd.
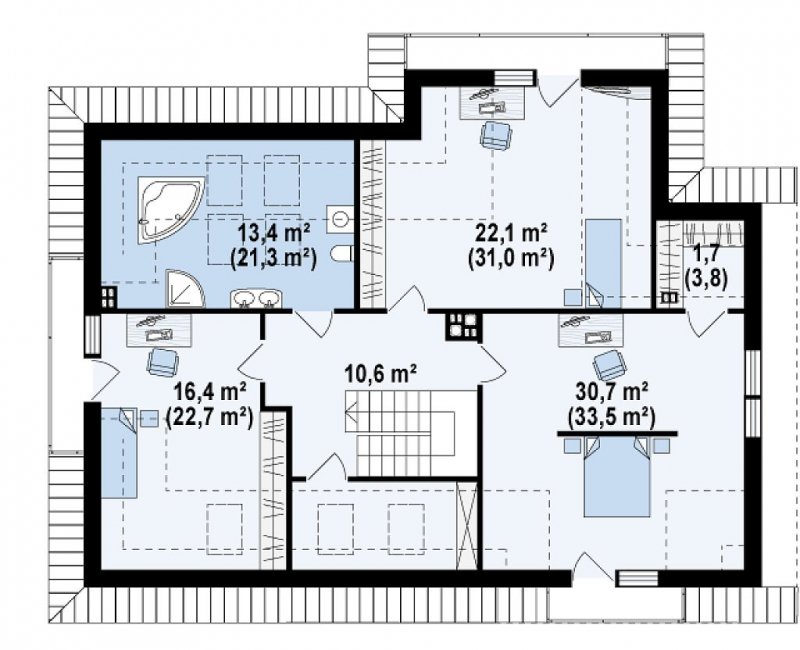
Wnętrze domu Z272 jest jasne i przestronne. Salon połączony jest jednoprzestrzennie z kuchnią i jadalnią. Od frontu zlokalizowano pokój, który może służyć jako gabinet bądź pokój gościnny, oraz sień. Dodatkową zaletą tego projektu jest możliwość bezpośredniego przejścia z domu do garażu, na którego tyłach zlokalizowano pomieszczenie gospodarcze z dostępem od zewnątrz. Na piętrze znajdują się trzy duże sypialnie, każda z możliwością wyjścia na balkon, spora łazienka oraz dodatkowe pomieszczenie, które może służyć jako garderoba.
Dom Z272 nie tylko prezentuje się wspaniale, ale także jest niezwykle funkcjonalny i wygodny.
Dbamy o swoich Klientów, jak nikt inny!
Do każdego projektu zakupionego za pośrednictwem serwisu kreoDOM.pl otrzymasz książeczkę z rabatami na zakupy w firmach Komfort, Fachowiec, Domino Łazienki, Komandor, Witek Home i innych. Książeczka na pewno okaże się przydatna podczas urządzania Twojego wymarzonego domu!
Książeczka z rabatami do takich firm jak: Komfort, Domino Łazienki, Fachowiec, Vox, Komandor, Witek Home i innych
Gwarancja
bezpiecznych zakupów
Dodatkowe pakiety projektowe
- Kosztorys inwestorski 249,00zł
- Zestawienie materiałów 57,00 zł
- Wentylacja mechaniczna z rekuperacja 550,00 zł
- Pompa ciepła 250,00 zł
- Kotłownia na paliwo stałe zapytaj o dostępność
- Ogrzewanie podłogowe 350,00 zł
- Kolektory słoneczne 250,00 zł
- Przydomowa oczyszczalnia ścieków 350,00 zł
- Wersja elektroniczna projektu 197,00 zł
- Dodatkowy egzemplarz projektu 249,00 zł