Dane techniczne
- Powierzchnia użytkowa 77.60 m²
- Powierzchnia zabudowy 103.80 m²
- Kubatura 224.37 m³
- Kąt nachylenia dachu 35.00°
- Powierzchnia dachu 160.63 m²
- Wysokość budynku 6.82 m
- Min. wymiary działki 16.46x18.36 m
- Pracownia Studio Z500
Technologia budowy
Ściany: gazobeton, ceramika, silikaty
Strop: betonowy gęstożebrowy
Dach: dachówka, blachodachówka
Opis
Projekt Z7 jest niewielkim i tanim w realizacji domem parterowym z dachem dwuspadowym. Prosta współczesna bryła, pozwoli na szybką i ekonomiczną budowę. Wzbogacenie elewacji drewnianymi elementami doda mu dodatkowego uroku, a tym samym wzbogaci walory estetyczne.
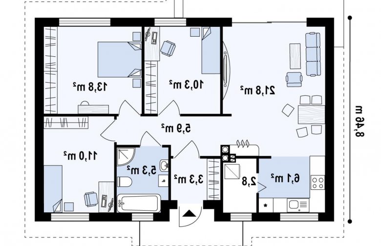
Na parter wchodzimy poprzez zadaszone wejście, prosto do sieni, skąd dalej wchodzimy do holu. Stanowi on ciąg komunikacyjny pomiędzy poszczególnymi pomieszczeniami. Parter możemy podzielić na dwie strefy, dzienną i sypialną. W jednej znajdują się trzy sypialnie oraz spora łazienka, natomiast w drugiej salon połączony z jadalnią i kuchnią oraz pomieszczenie gospodarcze. Z salonu mamy wyjście na zadaszony taras, który może być miłym miejscem na spędzenie wieczoru. Przeszklone duże drzwi zapewnią widok na ogród, a tym samym jedność z otoczeniem zewnętrznym.
Dom spodoba się wszystkim tym którzy szukają niewielkiego, funkcjonalnego domku parterowego, który mimo swych niewielkich rozmiarów posiada wiele miejsca na przestronne szafy i zaspokaja wszystkie niezbędne potrzeby.
Dbamy o swoich Klientów, jak nikt inny!
Do każdego projektu zakupionego za pośrednictwem serwisu kreoDOM.pl otrzymasz książeczkę z rabatami na zakupy w firmach Komfort, Fachowiec, Domino Łazienki, Komandor, Witek Home i innych. Książeczka na pewno okaże się przydatna podczas urządzania Twojego wymarzonego domu!
Książeczka z rabatami do takich firm jak: Komfort, Domino Łazienki, Fachowiec, Vox, Komandor, Witek Home i innych
Gwarancja
bezpiecznych zakupów
Dodatkowe pakiety projektowe
- Kosztorys inwestorski 249,00zł
- Zestawienie materiałów 57,00 zł
- Wentylacja mechaniczna z rekuperacja 550,00 zł
- Pompa ciepła 250,00 zł
- Kotłownia na paliwo stałe zapytaj o dostępność
- Ogrzewanie podłogowe 350,00 zł
- Kolektory słoneczne 250,00 zł
- Przydomowa oczyszczalnia ścieków 350,00 zł
- Wersja elektroniczna projektu 197,00 zł
- Dodatkowy egzemplarz projektu 249,00 zł
ustalana telefonicznie
82.65 m²