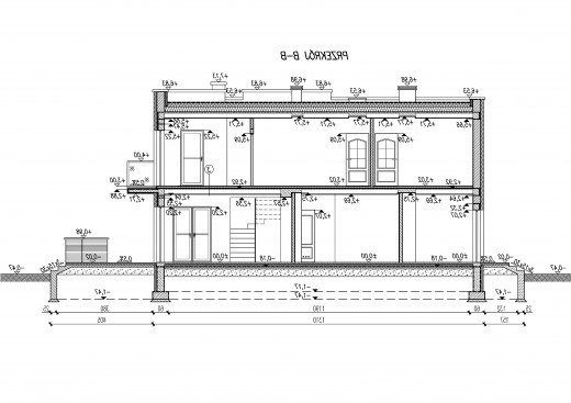
Dane techniczne
- Powierzchnia użytkowa 137.50 m²
- Powierzchnia zabudowy 144.64 m²
- Kubatura 683.31 m³
- Kąt nachylenia dachu 3.00°
- Powierzchnia dachu 75.00 m²
- Wysokość budynku 7.60 m
- Min. wymiary działki 24.12x16.00 m
- Pracownia Pro Arte
Technologia budowy
- ściany zewnętrzne murowane grubości 30 cm + 12 cm styropian
- ściany wewnętrzne (nośne) gr. 25 cm i działowe gr. 12 cm
- wszystkie ściany wykonane z pustaków ceramicznych "POROTHERM"
- strop nad parterem i piętrem gęstożebrowy "POROTHERM" o gr. 23 cm, nad garażem 27cm
- projekt posiada kominek
- instalacja grzewcza: kocioł gazowy w kotłowni
Opis
Dom mieszkalny wolnostojący piętrowy.
Projekt składa się z części architektonicznej, konstrukcyjnej, wewnętrznych instalacji sanitarnych i instalacji elektrycznej. W projekcie załączone są podstawowe zestawienie stali, drewna i stolarki okienno-drzwiowej. Do projektu dołączamy bezpłatną zgodę na wprowadzenie zmian, oświadczenie projektantów o wykonaniu projektu zgodnie z obowiązującymi normami i przepisami oraz kserokopie uprawnień projektantów wraz z aktualnym wpisem do izby. W przypadku zamówienia projektu w technologii lekkiej, drewnianej konstrukcji szkieletowej, powierzchnia użytkowa budynku jest o około 7% większa.
Rzuty
RZUT PARTERU
- Wiartołap 4.12 m2
- Komunikacja 10.4 m2
- Łazienka 4.41 m2
- Gabinet 9.45 m2
- Kotłownia 5.06 m2
- Spiżarnia 4.07 m2
- Kuchnia z aneksem jadalnym 14.63 m2
- Pokój dzienny 20.46 m2
RZUT PIĘTRA
- Komunikacja 12.04 m2
- Garderoba 6.62 m2
- Pokój 12.88 m2
- Pokój 11.93 m2
- Łazienka 8.61 m2
- Garderoba 4.57 m2
- sypialnia 13.31 m2
Rzuty
RZUT PARTERU
- Wiartołap 4.12 m2
- Komunikacja 10.4 m2
- Łazienka 4.41 m2
- Gabinet 9.45 m2
- Kotłownia 5.06 m2
- Spiżarnia 4.07 m2
- Kuchnia z aneksem jadalnym 14.63 m2
- Pokój dzienny 20.46 m2
RZUT PIĘTRA
- Komunikacja 12.04 m2
- Garderoba 6.62 m2
- Pokój 12.88 m2
- Pokój 11.93 m2
- Łazienka 8.61 m2
- Garderoba 4.57 m2
- sypialnia 13.31 m2
Dbamy o swoich Klientów, jak nikt inny!
Do każdego projektu zakupionego za pośrednictwem serwisu kreoDOM.pl otrzymasz książeczkę z rabatami na zakupy w firmach Komfort, Fachowiec, Domino Łazienki, Komandor, Witek Home i innych. Książeczka na pewno okaże się przydatna podczas urządzania Twojego wymarzonego domu!
Książeczka z rabatami do takich firm jak: Komfort, Domino Łazienki, Fachowiec, Vox, Komandor, Witek Home i innych
Gwarancja
bezpiecznych zakupów
Dodatkowe pakiety projektowe
- Kosztorys inwestorski Zapytaj o dostępność