Dane techniczne
- Powierzchnia użytkowa 327.86 m²
- Powierzchnia zabudowy 343.00 m²
- Kubatura 1361.00 m³
- Kąt nachylenia dachu 30.00°
- Powierzchnia dachu 162.00 m²
- Wysokość budynku 10.99 m
- Min. wymiary działki 32.55x30.90 m
- Garaż 62.65 m²
- Pracownia LK & Projekt
Technologia budowy
Ławy fundamentowe: żelbetowe
Ściany zewnętrzne: pustaki ceramiczne Porotherm firmy Wienerberger o gr. 44 cm + styropian o gr. 6 cm
Ściany wewnętrzne: pustaki ceramiczne Porotherm firmy Wienerberger gr. 25 cm, 11,5 cm
Strop żelbetowy, monolityczny
Konstrukcja dachu: drewniana, krokwiowa + wełna mineralna firmy Rockwool o łącznej grubości 30 cm
Pokrycie dachu: blacha tytan.- cynk
Elewacje: tynk silikonowy, kolor biały; płyty Rockpanel Colours firmy Rockwool; płyty cięte z kamienia naturalnego – trawertynu; płyty HPL
Okna i drzwi balkonowe: aluminiowe firmy Yawal, kolor: szary
Sposób ogrzewania: kocioł na gaz + ogrzewanie podłogowe + kolektory słoneczne
Wentylacja: mechaniczna z rekuperacją
Opis
Projekt nowoczesnego domu piętrowego z antresolą i trzystanowiskowym garażem w bryle budynku.
Rzuty
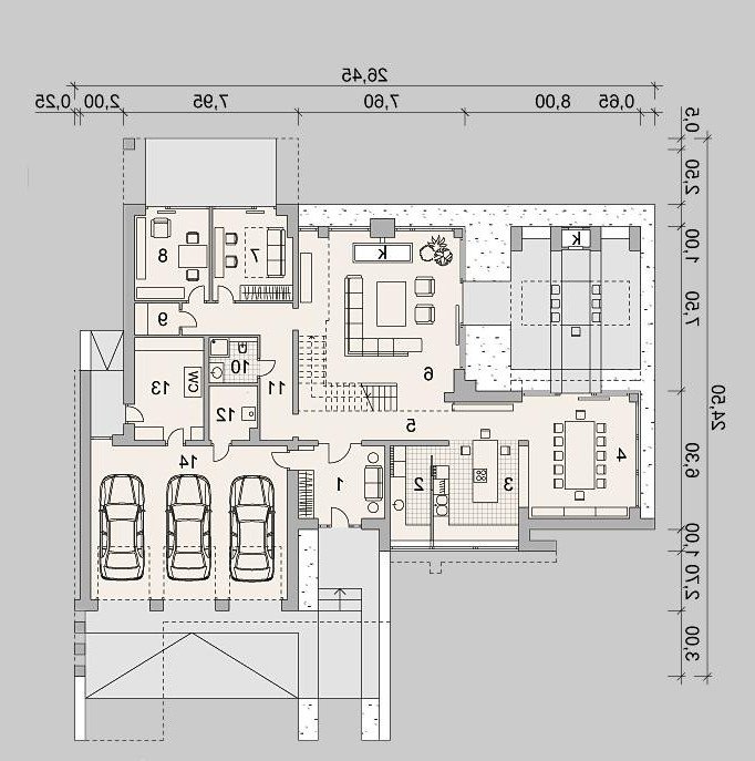
- Sień 13,86 m2
- Spiżarka 7,87 m2
- Kuchnia 16,77 m2
- Jadalnia 24,43 m2
- Korytarz 16,56 m2
- Salon 43,15 m2
- Pokój gościnny 13,93 m2
- Gabinet 13,34 m2
- Pomieszczenie porządkowe 2,95 m2
- Łazienka 4,55 m2
- Korytarz 2 14,41 m2
- Kotłownia 5,41 m2
- Pomieszczenie gospodarcze 14,76 m2
- Garaż 62,65 m2
- Strefa odpoczynku 10,88 m2
- Sypialnia 20,28 m2
- Garderoba 12,30 m2
- Korytarz 22,53 m2
- Łazienka 12,14 m2
- Kino domowe 15,84 m2
- Pralnia 6,48 m2
- Korytarz 2 3,05 m2
- Łazienka 2 13,96 m2
- Pokój 16,41 m2
- Pokój 2 16,72 m2
Rzuty
- Sień 13,86 m2
- Spiżarka 7,87 m2
- Kuchnia 16,77 m2
- Jadalnia 24,43 m2
- Korytarz 16,56 m2
- Salon 43,15 m2
- Pokój gościnny 13,93 m2
- Gabinet 13,34 m2
- Pomieszczenie porządkowe 2,95 m2
- Łazienka 4,55 m2
- Korytarz 2 14,41 m2
- Kotłownia 5,41 m2
- Pomieszczenie gospodarcze 14,76 m2
- Garaż 62,65 m2
- Strefa odpoczynku 10,88 m2
- Sypialnia 20,28 m2
- Garderoba 12,30 m2
- Korytarz 22,53 m2
- Łazienka 12,14 m2
- Kino domowe 15,84 m2
- Pralnia 6,48 m2
- Korytarz 2 3,05 m2
- Łazienka 2 13,96 m2
- Pokój 16,41 m2
- Pokój 2 16,72 m2
Dbamy o swoich Klientów, jak nikt inny!
Do każdego projektu zakupionego za pośrednictwem serwisu kreoDOM.pl otrzymasz książeczkę z rabatami na zakupy w firmach Komfort, Fachowiec, Domino Łazienki, Komandor, Witek Home i innych. Książeczka na pewno okaże się przydatna podczas urządzania Twojego wymarzonego domu!
Książeczka z rabatami do takich firm jak: Komfort, Domino Łazienki, Fachowiec, Vox, Komandor, Witek Home i innych
Gwarancja
bezpiecznych zakupów
Dodatkowe pakiety projektowe
- Kosztorys inwestorski cena ustalana indywidualnie
- Kolektory słoneczne cena ustalana indywidualnie
- Kominek z DGP cena ustalana indywidualnie
- Wentylacja mechaniczna z rekuperacją cena ustalana indywidualnie
- Pompa ciepła cena ustalana indywidualnie