Dane techniczne
- Powierzchnia użytkowa 237.79 m²
- Powierzchnia zabudowy 262.00 m²
- Kubatura 1212.00 m³
- Kąt nachylenia dachu 42.00°
- Powierzchnia dachu 388.00 m²
- Wysokość budynku 8.99 m
- Min. wymiary działki 26.54x33.62 m
- Garaż 79.32 m²
- Pracownia LK & Projekt
Technologia budowy
- Okna i drzwi balkonowe: PVC firmy Oknoplast - system Winergetic Premium
- Sposób ogrzewania: kocioł na gaz, wspomaganie cwu kolektorami słonecznymi, ogrzewanie podłogowe
- Elewacje: wykończone tynkiem silikonowym, cokoły wykończone kamieniem naturalnym
- Strop: żelbetowy
- Konstrukcja dachu: drewniana, ocieplona wełną mineralną firmy Rockwool gr. 30cm
- Pokrycie dachu: dachówką ceramiczną 'Koramic' firmy 'Wienerberger'
- Ściany wewnętrzne: z pustaków ceramicznych 'Porotherm Profi' gr. 25, 11.5 cm firmy Wienerberger
- Wentylacja: mechaniczna z rekuperacją
- Ściany zewnętrzne: z pustaków ceramicznych 'Porotherm Profi' o gr.30 cm firmy Wienerberger, ocieplone styropianem 'Platinum Fasada' gr. 20 cm firmy Termo Organika
- Ławy fundamentowe: żelbetowe
- Ściany fundamentowe: z bloczków betonowych o gr. 25 i 30 cm ocieplone styropianem 'GOLD fundament' firmy Termo Organika o gr. 20 cm
- Koszt orientacyjny (bez Vat): 937 974.00 zł.
Opis
Jednorodzinny dom parterowy z użytkowym poddaszem.
Rzuty
PIWNICA
Piwnica
1. Hall 9.16m
2. Pomieszczenie gospodarcze 5.45m
3. Spiżarka 3.12m
4. Kotłownia 5.38m
5. Sień 4.45m
6. Garaż 79.32m
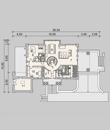
PARTER
Parter
1. Sień 4.11m
2. Garderoba 4.95m
3. Hall 15.14m
4. Spiżarka 4.59m
5. Kuchnia 15.27m
6. Jadalnia 24.54m
7. Pokój dzienny 32.05m
8. Łazienka 4.18m
9. Gabinet 19.87m
10. Gabinet 2 13.90m
11. Pomieszczenie gospodarcze 17.90m
PODDASZE
Poddasze
1. Hall (12.34) 12.34m
2. Garderoba (9.18) 5.26m
3. Sypialnia (20.79) 19.70m
4. Garderoba 2 (9.18) 5.26m
5. Łazienka (12.07) 10.91m
6. Pralnia (9.50) 8.22m
7. Sypialnia 2 (19.92)15.32m
8. Sypialnia 3 (19.92)15.32m
9. Łazienka 2 (8.17) 5.71m
10. Sauna (7.44) 5.15m
11. Pomieszczenie strychowe (22.98) 10.91m
Rzuty
PIWNICA
Piwnica
1. Hall 9.16m
2. Pomieszczenie gospodarcze 5.45m
3. Spiżarka 3.12m
4. Kotłownia 5.38m
5. Sień 4.45m
6. Garaż 79.32m
PARTER
Parter
1. Sień 4.11m
2. Garderoba 4.95m
3. Hall 15.14m
4. Spiżarka 4.59m
5. Kuchnia 15.27m
6. Jadalnia 24.54m
7. Pokój dzienny 32.05m
8. Łazienka 4.18m
9. Gabinet 19.87m
10. Gabinet 2 13.90m
11. Pomieszczenie gospodarcze 17.90m
PODDASZE
Poddasze
1. Hall (12.34) 12.34m
2. Garderoba (9.18) 5.26m
3. Sypialnia (20.79) 19.70m
4. Garderoba 2 (9.18) 5.26m
5. Łazienka (12.07) 10.91m
6. Pralnia (9.50) 8.22m
7. Sypialnia 2 (19.92)15.32m
8. Sypialnia 3 (19.92)15.32m
9. Łazienka 2 (8.17) 5.71m
10. Sauna (7.44) 5.15m
11. Pomieszczenie strychowe (22.98) 10.91m
Dbamy o swoich Klientów, jak nikt inny!
Do każdego projektu zakupionego za pośrednictwem serwisu kreoDOM.pl otrzymasz książeczkę z rabatami na zakupy w firmach Komfort, Fachowiec, Domino Łazienki, Komandor, Witek Home i innych. Książeczka na pewno okaże się przydatna podczas urządzania Twojego wymarzonego domu!
Książeczka z rabatami do takich firm jak: Komfort, Domino Łazienki, Fachowiec, Vox, Komandor, Witek Home i innych
Gwarancja
bezpiecznych zakupów
Dodatkowe pakiety projektowe
- Kosztorys inwestorski cena ustalana indywidualnie
- Kolektory słoneczne cena ustalana indywidualnie
- Kominek z DGP cena ustalana indywidualnie
- Wentylacja mechaniczna z rekuperacją cena ustalana indywidualnie
- Pompa ciepła cena ustalana indywidualnie