Dane techniczne
- Powierzchnia użytkowa 242.16 m²
- Powierzchnia zabudowy 217.69 m²
- Kubatura 866.80 m³
- Kąt nachylenia dachu 43.00°
- Powierzchnia dachu 374.00 m²
- Wysokość budynku 9.98 m
- Min. wymiary działki 24.40x25.73 m
- Pracownia LK & Projekt
Technologia budowy
- Strop: żelbetowy
- Konstrukcja dachu: drewniana, mieszana: krokwiowa oraz płatwiowo-kleszczowa + wełna mineralna 'Megarock' firmy Rockwool o łącznej grubości 30cm
- Pokrycie dachu: dachówką ceramiczną 'Koramic' firmy 'Wienerberger'
- Elewacje: wykończone tynkiem silikonowym, cokoły wykończone kamieniem naturalnym ciętym
- Okna i drzwi balkonowe: PVC firmy Oknoplast
- Sposób ogrzewania: kocioł na gaz, wspomaganie cwu kolektorami słonecznymi firmy Fakro
- Wentylacja: mechaniczna z rekuperacją
- Ściany zewnętrzne: z bloczków z betonu komórkowego Ytong Energo gr.48 cm firmy Xella
- Ławy fundamentowe: żelbetowe
- Ściany fundamentowe: z bloczków betonowych o gr.24 i 30 cm, ocieplone styropianem Gold fundament o gr. 18 cm
- Ściany wewnętrzne: z bloczków Silka gr. 24 i 12 cm
- Koszt orientacyjny (bez Vat): 624 834.00 zł.
Opis
Dom jednorodzinny, parterowy, z poddaszem użytkowym i podpiwniczeniem.
Rzuty
PIWNICA
Piwnica
1. Hall 10.78m
2. Komunikacja 12.26m
3. Pralnia z kotłownią 12.84m
4. Pomieszczenie techniczne 28.11m
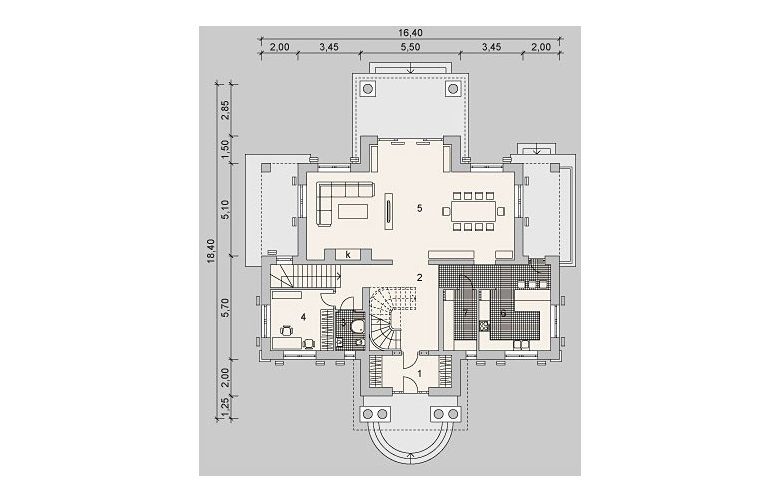
PARTER
Parter
1. Sień 7.99m
2. Hall 19.62m
3. Łazienka 3.45m
4. Gabinet 11.81m
5. Pokój dzienny z jadalnią 60.81m
6. Kuchnia 17.44m
7. Spiżarka 6.22m
PODDASZE
Poddasze
1. Hall (15.68) 15.29m
2. Schowek (4.28) 3.00m
3. Sypialnia (17.68) 11.81m
4. Łazienka (8.67) 7.68m
5. Garderoba (9.01) 6.63m
6. Sypialnia 2 (18.14) 15.94m
7. Sypialnia 3 (24.88) 22.63m
8. Garderoba 2 (11.76) 7.00m
9. Łazienka 2 (18.96) 12.84m
10. Garderoba 3 (6.05) 4.38m
11. Pokój komputerowy (10.60) 7.74m
Rzuty
PIWNICA
Piwnica
1. Hall 10.78m
2. Komunikacja 12.26m
3. Pralnia z kotłownią 12.84m
4. Pomieszczenie techniczne 28.11m
PARTER
Parter
1. Sień 7.99m
2. Hall 19.62m
3. Łazienka 3.45m
4. Gabinet 11.81m
5. Pokój dzienny z jadalnią 60.81m
6. Kuchnia 17.44m
7. Spiżarka 6.22m
PODDASZE
Poddasze
1. Hall (15.68) 15.29m
2. Schowek (4.28) 3.00m
3. Sypialnia (17.68) 11.81m
4. Łazienka (8.67) 7.68m
5. Garderoba (9.01) 6.63m
6. Sypialnia 2 (18.14) 15.94m
7. Sypialnia 3 (24.88) 22.63m
8. Garderoba 2 (11.76) 7.00m
9. Łazienka 2 (18.96) 12.84m
10. Garderoba 3 (6.05) 4.38m
11. Pokój komputerowy (10.60) 7.74m
Dbamy o swoich Klientów, jak nikt inny!
Do każdego projektu zakupionego za pośrednictwem serwisu kreoDOM.pl otrzymasz książeczkę z rabatami na zakupy w firmach Komfort, Fachowiec, Domino Łazienki, Komandor, Witek Home i innych. Książeczka na pewno okaże się przydatna podczas urządzania Twojego wymarzonego domu!
Książeczka z rabatami do takich firm jak: Komfort, Domino Łazienki, Fachowiec, Vox, Komandor, Witek Home i innych
Gwarancja
bezpiecznych zakupów
Dodatkowe pakiety projektowe
- Kosztorys inwestorski cena ustalana indywidualnie
- Kolektory słoneczne cena ustalana indywidualnie
- Kominek z DGP cena ustalana indywidualnie
- Wentylacja mechaniczna z rekuperacją cena ustalana indywidualnie
- Pompa ciepła cena ustalana indywidualnie