Technologia drewniana - płazy :
- ściany nośne : słupki 4x20 rozstawione max. co 40cm obite zewnątrz płytą OSB3 o gr. 1,2cm i deską ozdobną o gr. 4,5cm, a wewnątrz deską ozdobną o gr. 3,5cm, przestrzeń pomiędzy słupkami wypełniona wełną mineralną 20cm.
- konstrukcja więźby dachowej drewniana, pokrycie blachodachówka.
- więźba o konstrukcji drewnianej z wiązarów attykowych
- strop nad częścią piwnicy POROTHERM 25cm.
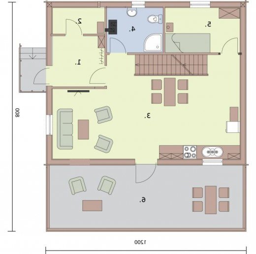
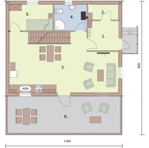
ONTARIO - dom z płazów drewnianych, wolnostojący, piętrowy z tarasem i podpiwniczeniem. Piękny stylizowany na góralską chatę w pełni nowoczesny dom wykonany w technologii drewnianej z płazów zadowoli najbardziej wyszukane gusta. Świetnie wkomponuje się w górskie zbocze, właśnie z myślą o ostrzejszym klimacie oraz m.in. zwiększonych opadach śniegu został zaprojektowany ten dom. Z pewnością da Ci schronie, zapewni odpoczynek i będzie ozdobą okolicy. Dalej wgłąb domu usytuowano salon z aneksem kuchennym (aż 35 m2!). Można z tego największego w domu pomieszczenia przejść tarasu, który z pewnością stanie się atrakcję letnich wieczorów, spędzanych w gronie bliskich i znajomych. Na północnej ścianie znajduje się jeszcze łazienka oraz sypialnia. Na piętrze pomieszczono łazienkę oraz łączącą te pokoje komunikację z wyjściem na balkon. Piwnica jest niepodzieloną przestrzenią zamkniętą ścianami zewnętrznymi, posiada osobne wejście. Kolejnym udogodnieniem jest wiata, pod którą można schować samochód. Podsumowując, jeśli szukasz domu całorocznego lub letniskowego i dysponujesz działką w górach, jest to propozycja stworzona z myślą o Twoich potrzebach. Projekt składa się z części architektonicznej, konstrukcyjnej, wewnętrznych instalacji wod.-kan, c. o. i elektrycznej. W projekcie załączone są podstawowe zestawienie stali, drewna i stolarki okienno-drzwiowej. Do projektu dołączamy bezpłatną zgodę na wprowadzenie zmian, oświadczenie projektantów o wykonaniu projektu zgodnie z obowiązującymi normami i przepisami oraz kserokopie uprawnień projektantów wraz z aktualnym wpisem do izby.