Ściany: gazobeton, ceramika, silikaty
Dach: blachodachówka, blacha, gont
Strop: betonowy gęstożebrowy Teriva
Zx40 to wyjątkowy projekt domu dwulokalowego. Elewacja całkowicie wykonana w grafitowym goncie podkreśla jego nowatorski charakter. Projekt doskonale nadaje się do zabudowy na wąską działkę z bocznym wjazdem do dwustanowiskowego garażu, gdzie każde piętro może mieć przyporządkowane jedno miejsce parkingowe. Stosując odpowiednie technologie dom z powodzeniem może pełnić funkcję energooszczędnego. Pozwoli to zaoszczędzić czas, energię i pieniądze w toku jego eksploatacji.
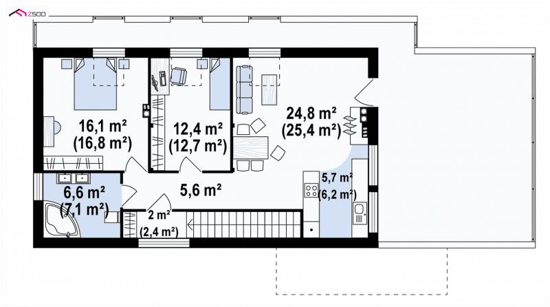
Największą zaletą projektu Zx40 jest możliwość dowolnej zmiany przestrzeni wnętrza. Ściany działowe można swobodnie przesuwać, zmniejszając lub zwiększając powierzchnie łazienek, sypialni, dodając pokoi lub tworząc ogromną powierzchnię salonową. Duże płaszczyzny przeszkleń wyśmienicie doświetlają wnętrza zdrowym, naturalnym światłem.
Kolejną zaletą tego projektu jest powiększony garaż o dwóch stanowiskach, z którego prowadzi bezpośrednie przejście do pomieszczenia gospodarczego.
Pomysłowe rozwiązania widoczne są również na piętrze (w drugim mieszkaniu). Dzięki oryginalnej stolarce okiennej rozplanowane pomieszczenia są jasne i dobrze doświetlone. Z każdego pokoju może prowadzić wyjście na balkon i przestronny taras, a kominki w salonach na każdym z pięter będą dodawały ciepła domowego ogniska.
Zx40 to propozycja dla osób poszukujących wyjątkowo wyróżniającego się projektu, w którym kreatywność mieszkańców pobudza jego wygląd zewnętrzny jak i przebywanie w jego nowatorskim wnętrzu.