Dane techniczne
- Powierzchnia użytkowa 113.31 m²
- Powierzchnia zabudowy 117.98 m²
- Kubatura 351.20 m³
- Kąt nachylenia dachu 3.00°
- Powierzchnia dachu 59.83 m²
- Wysokość budynku 7.00 m
- Min. wymiary działki 17.64x20.74 m
- Garaż 19.36 m²
- Pracownia Studio Z500
Technologia budowy
Ściany: gazobeton, ceramika, silikaty
Strop: żelbetowy
Dach: papa, folia, blacha
Opis
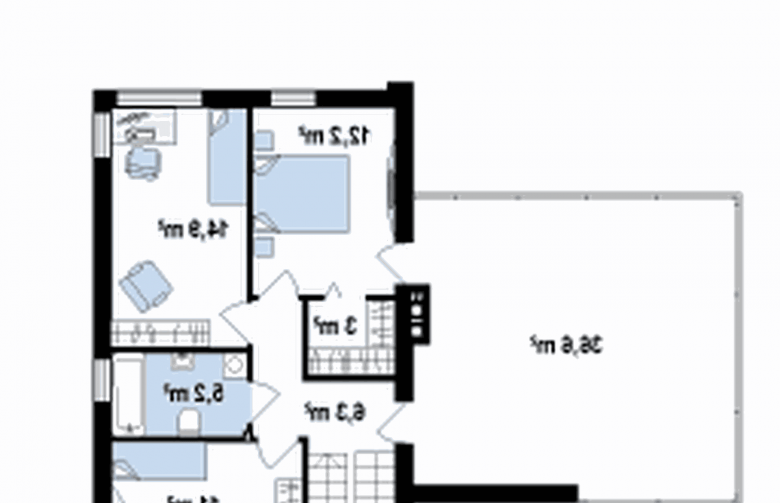
Zx41v1 to piętrowy dom z płaskim dachem z garażem w bryle. Elegancka, modernistyczna bryła we wnętrzu wyraźnie została podzielono na strefę dzienną i nocną.
Salon połączony z jadalnią oraz kuchnią tworzą jednoprzestrzenne wnętrze. Komfort użytkowania podnosi funkocjonalna spiżarka. W projekcie przewidziano duże pomieszczenie gospodarcze, łazienkę oraz miejsca na pojemne szafy. Ogromnym atutem jest garaż z bezpośrednim przejściem do sieni. Nad nim znajduje się ogromny taras dostępny z holu na piętrze. Strefa nocna to trzy sypialnie i ogólnodostępna łazienka. Hol doświetlają duże okna balkonowe. Master bedroom wyposażony został dodatkowo w garderobę.
Zx41 to propozycja kompaktowego domu dla zwolenników nowoczesnego stylu. Połączenie bieli i drewna tworzą spójną całość o wysokiej estetyce.
Dbamy o swoich Klientów, jak nikt inny!
Do każdego projektu zakupionego za pośrednictwem serwisu kreoDOM.pl otrzymasz książeczkę z rabatami na zakupy w firmach Komfort, Fachowiec, Domino Łazienki, Komandor, Witek Home i innych. Książeczka na pewno okaże się przydatna podczas urządzania Twojego wymarzonego domu!
Książeczka z rabatami do takich firm jak: Komfort, Domino Łazienki, Fachowiec, Vox, Komandor, Witek Home i innych
Gwarancja
bezpiecznych zakupów
Dodatkowe pakiety projektowe
- Kosztorys inwestorski 249,00zł
- Zestawienie materiałów 57,00 zł
- Wentylacja mechaniczna z rekuperacja 550,00 zł
- Pompa ciepła 250,00 zł
- Kotłownia na paliwo stałe zapytaj o dostępność
- Ogrzewanie podłogowe 350,00 zł
- Kolektory słoneczne 250,00 zł
- Przydomowa oczyszczalnia ścieków 350,00 zł
- Wersja elektroniczna projektu 197,00 zł
- Dodatkowy egzemplarz projektu 249,00 zł
ustalana telefonicznie
95.64 m²