Dane techniczne
- Powierzchnia użytkowa 140.56 m²
- Powierzchnia zabudowy 116.65 m²
- Kubatura 442.90 m³
- Kąt nachylenia dachu 35.00°
- Powierzchnia dachu 123.62 m²
- Wysokość budynku 8.16 m
- Min. wymiary działki 21.29x16.54 m
- Garaż 24.30 m²
- Pracownia Studio Z500
Technologia budowy
Ściany: gazobeton, ceramika, silikaty
Dach: dachówka, blachodachówka
Strop: betonowy gęstożebrowy Teriva
Opis
Zx44 to dom z użytkowym poddaszem i nowoczesną, modernistyczną formą oraz wyszukanymi detalami. Bryła budynku umożliwia łatwe wykonanie zabudowy bliźniaczej lub szeregowej.
Na parterze tuż przy wejściu do domu zlokalizowano gabinet z własnym wyjściem na ogród. Dalej znajduje się strefa dzienna z salonem w układzie podłużnym, jadalnią i połączoną kuchnią. Pokój dzienny otwiera się na ogród poprzez duże przeszklenie wykusza. Z sieni jest bezpośrednie przejście do części gospodarczej z garażem i kotłownią. Jeden komin usytuowany centralnie obsługujący kotłownię i kominek da oszczędności już na etapie budowy, a potem w trakcie eksploatacji.
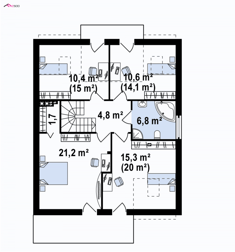
Poddasze mieści cztery sypialnie z wyjściami na dwa balkony oraz wygodną łazienkę. dodatkowo główna sypialnia posiada jeszcze garderobę. Zx44 jest celnym wyborem dla każdego, kto ceni użyteczność, funkcja oraz wyjątkowa i ciekawą współczesną architekturę.
Dbamy o swoich Klientów, jak nikt inny!
Do każdego projektu zakupionego za pośrednictwem serwisu kreoDOM.pl otrzymasz książeczkę z rabatami na zakupy w firmach Komfort, Fachowiec, Domino Łazienki, Komandor, Witek Home i innych. Książeczka na pewno okaże się przydatna podczas urządzania Twojego wymarzonego domu!
Książeczka z rabatami do takich firm jak: Komfort, Domino Łazienki, Fachowiec, Vox, Komandor, Witek Home i innych
Gwarancja
bezpiecznych zakupów
Dodatkowe pakiety projektowe
- Kosztorys inwestorski 249,00zł
- Zestawienie materiałów 57,00 zł
- Wentylacja mechaniczna z rekuperacja 550,00 zł
- Pompa ciepła 250,00 zł
- Kotłownia na paliwo stałe zapytaj o dostępność
- Ogrzewanie podłogowe 350,00 zł
- Kolektory słoneczne 250,00 zł
- Przydomowa oczyszczalnia ścieków 350,00 zł
- Wersja elektroniczna projektu 197,00 zł
- Dodatkowy egzemplarz projektu 249,00 zł