Dane techniczne
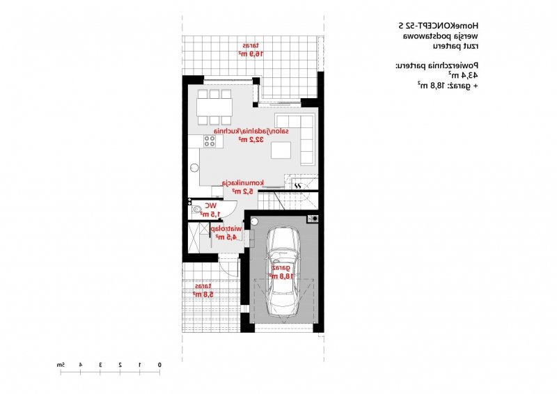
- Powierzchnia użytkowa 94.31 m²
- Powierzchnia zabudowy 78.85 m²
- Kubatura 494.85 m³
- Kąt nachylenia dachu 2.50°
- Powierzchnia dachu 72.00 m²
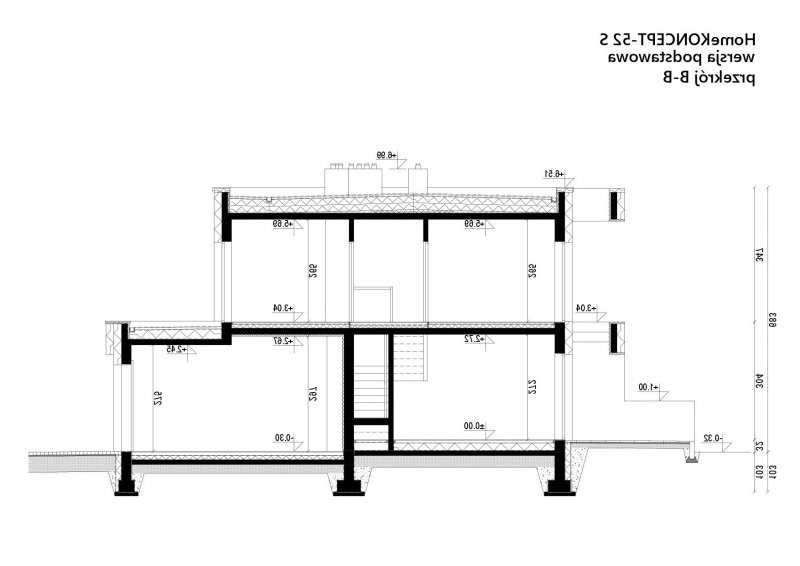
- Wysokość budynku 6.51 m
- Min. wymiary działki 7.17x21.40 m
- Garaż 18.80 m²
- Pracownia HomeKONCEPT
Technologia budowy
| Fundamenty |
Tradycyjne - na ławach fundamentowych |
| Ściany |
Dwuwarstwowe - pustak ceramiczny 25 cm + styropian 20 cm/wełna mineralna 18 cm |
| Stropy |
Żelbetowe wylewane |
| Dach |
Membrana EPDM |
| Elewacja |
Tynk silikonowy w połączeniu z deską elewacyjną |
| Ogrzewanie |
Gazowe - piec kondensacyjny, panele solarne na dachu do ogrzewania wody użytkowej |
| Wentylacja |
Grawitacyjna |
Opis
HomeKONCEPT 52 S to projekt domu w zabudowie szeregowej, wyposażony w instalację solarną do podgrzewania wody użytkowej.
Dbamy o swoich Klientów, jak nikt inny!
Do każdego projektu zakupionego za pośrednictwem serwisu kreoDOM.pl otrzymasz książeczkę z rabatami na zakupy w firmach Komfort, Fachowiec, Domino Łazienki, Komandor, Witek Home i innych. Książeczka na pewno okaże się przydatna podczas urządzania Twojego wymarzonego domu!
Książeczka z rabatami do takich firm jak: Komfort, Domino Łazienki, Fachowiec, Vox, Komandor, Witek Home i innych
Gwarancja
bezpiecznych zakupów
Dodatkowe pakiety projektowe
- Szczegółowy kosztorys inwestorski 350,00
- Wentylacja mechaniczna z rekuperacją 450,00 zł
- Pompa ciepła z ogrzewaniem podłogowym 800,00 zł
- Ogrzewanie podłogowe 400,00 zł
- Kolektory Słoneczne 0
- Kominek z płaszczem wodnym 300,00 zł
- Szambo 250,00 zł
- Dodatkowy egzemplarz projektu 350,00 zł
- Kotłownia na paliwo stałe 350,00 zł
- Wentylacja grawitacyjna 350,00 zł