Technologia tradycyjna, ściany zewnętrzne murowane grubości 30 cm + 10 cm styropian, ściany wewnętrzne (nośne) gr. 25 cm i działowe gr. 12 cm. Wszystkie ściany wykonane z pustaków ceramicznych "POROTHERM". Strop gęstożebrowy "POROTHERM" o gr. 23 cm.. Konstrukcja więźby dachowej drewniana, pokrycie dachówka ceramiczna.
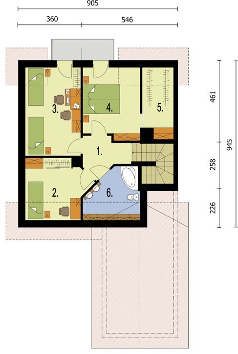
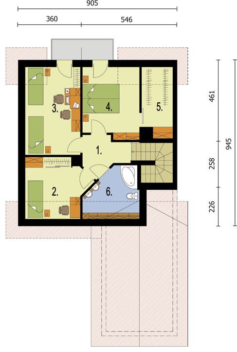
Cena za jeden segment! Wszystkie podane informacje dotyczą 1 segmentu. "Toskania" Wprost zza Morza Północnego przyszła moda na domki szeregowe! Za co warto je pokochać i dlaczego stają się takie popularne? Otóż zapewniają maksimum prywatności mimo, że tuż za ścianą mieszka druga rodzina, a za sprawą praktycznie rozmieszczonych pomieszczeń nawet ten niewielki domek staje się rezydencją na jaką od lat czekaliście. Na parterze w otwartej przestrzeni ulokowane zostały kuchnia z jadalnią i salonem z wydzieloną wysepką pełniącą funkcję garderoby, a pomieszczenia takie jak łazienka i kotłownia zostały umieszczone obok schodów prowadzących na poddasze. Tam z kolei kryją się sypialnia z garderobą, dwa pokoje i przestronna łazienka. Toskania specjalnie dla tych, którzy lubią przebywać na świeżym powietrzu wyposażona została w przytulny taras i niewielki balkon. Poza tym posiada garaż, który czyni domek atrakcyjnym nabytkiem, gdyż jest on nietypowy i rzadko spotykany przy tego rodzaju budynkach. Projekt składa się z części architektonicznej, konstrukcyjnej, wewnętrznych instalacji wod.-kan, c. o. , gaz. i elektrycznej. W projekcie załączone są podstawowe zestawienie stali, drewna i stolarki okienno-drzwiowej. Do projektu dołączamy bezpłatną zgodę na wprowadzenie zmian, oświadczenie projektantów o wykonaniu projektu zgodnie z obowiązującymi normami i przepisami oraz kserokopie uprawnień projektantów wraz z aktualnym wpisem do izby. W przypadku zamówienia projektu w technologii lekkiej, drewnianej konstrukcji szkieletowej, powierzchnia użytkowa budynku jest o około 7% większa.