Dane techniczne
- Powierzchnia użytkowa 135.20 m²
- Powierzchnia zabudowy 147.19 m²
- Kubatura 523.79 m³
- Kąt nachylenia dachu 32.00°
- Powierzchnia dachu 90.54 m²
- Wysokość budynku 7.73 m
- Min. wymiary działki 24.75x18.00 m
- Garaż 43.32 m²
- Pracownia Studio Z500
Technologia budowy
Ściany: gazobeton, ceramika, silikaty
Dach: dachówka, blachodachówka
Strop: betonowy gęstożebrowy Teriva
Opis
Zb17 to piętrowy dom o dwuspadowym dachu z opcją łączenia segmentów w bliźniak lub zabudowę szeregową. Każdy segment zawiera dwa oddzielne mieszkania, do których wchodzi się przez wspólny przedsionek. Z sieni jest też bezpośrednie wejście do dwustanowiskowego garażu. Z garażu zaś do pomieszczenia gospodarczego.
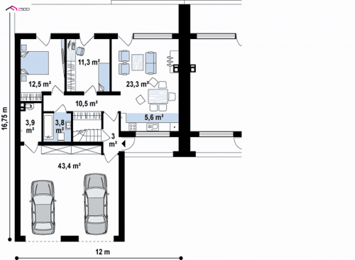
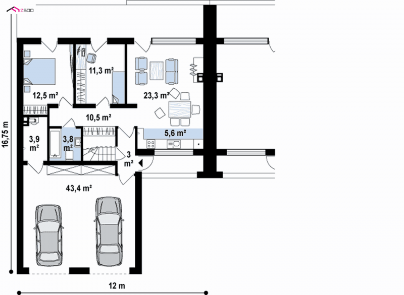
Pierwsze mieszkanie znajduje się na parterze. Zawiera salon połączony z kuchnią. Salon ma wyjście na zadaszony taras. Mieszkanie posiada jeszcze dwa pokoje i łazienkę.
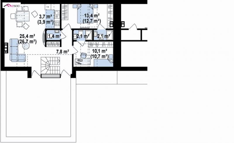
Na piętrze może być drugie mieszkanie, które posiada duży salon z ciekawym wyjściem na taras. Pokój jest doświetlony oknami dachowymi, które dają ciekawy efekt wewnątrz. Na kondygnacji mieszczą się jeszcze dwa pokoje, każdy z własną łazienką.
Dbamy o swoich Klientów, jak nikt inny!
Do każdego projektu zakupionego za pośrednictwem serwisu kreoDOM.pl otrzymasz książeczkę z rabatami na zakupy w firmach Komfort, Fachowiec, Domino Łazienki, Komandor, Witek Home i innych. Książeczka na pewno okaże się przydatna podczas urządzania Twojego wymarzonego domu!
Książeczka z rabatami do takich firm jak: Komfort, Domino Łazienki, Fachowiec, Vox, Komandor, Witek Home i innych
Gwarancja
bezpiecznych zakupów
Dodatkowe pakiety projektowe
- Kosztorys inwestorski 249,00zł
- Zestawienie materiałów 57,00 zł
- Wentylacja mechaniczna z rekuperacja 550,00 zł
- Pompa ciepła 250,00 zł
- Kotłownia na paliwo stałe zapytaj o dostępność
- Ogrzewanie podłogowe 350,00 zł
- Kolektory słoneczne 250,00 zł
- Przydomowa oczyszczalnia ścieków 350,00 zł
- Wersja elektroniczna projektu 197,00 zł
- Dodatkowy egzemplarz projektu 249,00 zł