Dane techniczne
- Powierzchnia użytkowa 153.90 m²
- Powierzchnia zabudowy 120.50 m²
- Kubatura 691.50 m³
- Kąt nachylenia dachu 35.00°
- Wysokość budynku 8.32 m
- Min. wymiary działki 24.00x19.00 m
- Garaż 22.90 m²
- Pracownia MOJ-DOM
Technologia budowy
Fundamenty: żelbetowe, wylewane
Ściany zewnętrzne: szkieletowe, ocieplone wełną mineralną
Strop: belkowy, drewniany,zamknięty
Pokrycie dachu: dachówka ceramiczna
Nachylenie dachu: 35°
Opis
Budynek jednorodzinny, parterowy z poddaszem użytkowym, niepodpiwniczony, 4 pokoje, kuchnia, garaż i wiata
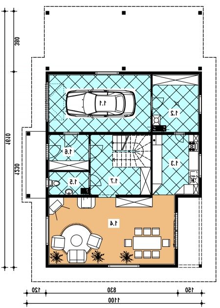
Rzuty
- Garaż 22,90 m²
- Kotłownia 10,00 m²
- Kuchnia 10,80 m²
- Pokój dzienny 33,00 m²
- WC 3,40 m²
- Wiatrołap 5,60 m²
- Komunikacja 11,90 m²
- Sypialnia 16,70 m²
- Sypialnia 16,60 m²
- Pom. gospodarcze 5,30 m²
- Sypialnia 13,00 m²
- Garderoba 8,60 m²
- Łazienka 8,00 m²
- Hall 9,50 m²
- Pralnia 1,50 m²
Rzuty
- Garaż 22,90 m²
- Kotłownia 10,00 m²
- Kuchnia 10,80 m²
- Pokój dzienny 33,00 m²
- WC 3,40 m²
- Wiatrołap 5,60 m²
- Komunikacja 11,90 m²
- Sypialnia 16,70 m²
- Sypialnia 16,60 m²
- Pom. gospodarcze 5,30 m²
- Sypialnia 13,00 m²
- Garderoba 8,60 m²
- Łazienka 8,00 m²
- Hall 9,50 m²
- Pralnia 1,50 m²
Dbamy o swoich Klientów, jak nikt inny!
Do każdego projektu zakupionego za pośrednictwem serwisu kreoDOM.pl otrzymasz książeczkę z rabatami na zakupy w firmach Komfort, Fachowiec, Domino Łazienki, Komandor, Witek Home i innych. Książeczka na pewno okaże się przydatna podczas urządzania Twojego wymarzonego domu!
Książeczka z rabatami do takich firm jak: Komfort, Domino Łazienki, Fachowiec, Vox, Komandor, Witek Home i innych
Gwarancja
bezpiecznych zakupów
Dodatkowe pakiety projektowe