Ściany zewnętrzne 2-warstwowe: Beton komórkowy ( 24cm) / Pustak ceramiczny (25cm) + styropian 20cm Uściany < 0,20 W/(m2*K) – warunek spełniony.
Ławy fundamentowe tradycyjne: Ściany fundamentowe betonowe gr.24(25cm) z bloczków betonowych lub wylewane.
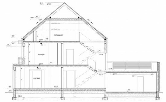
Stropy: płyta żelbetowa. Zamiennie można zastosować strop gęstożeberkowy typu TERIVA .
Konstrukcja dachu: tradycyjna drewniana, pokrycie dachu z dachówki ceramicznej.
Elewacje: pokryte tynkiem strukturalnym cienkowarstwowym.
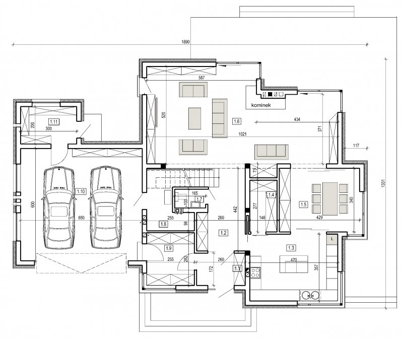
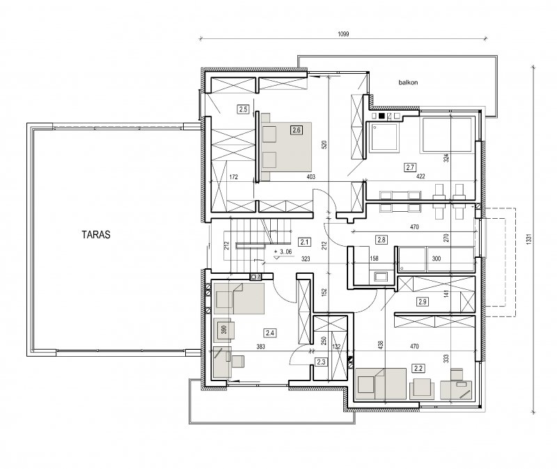
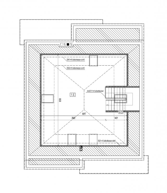
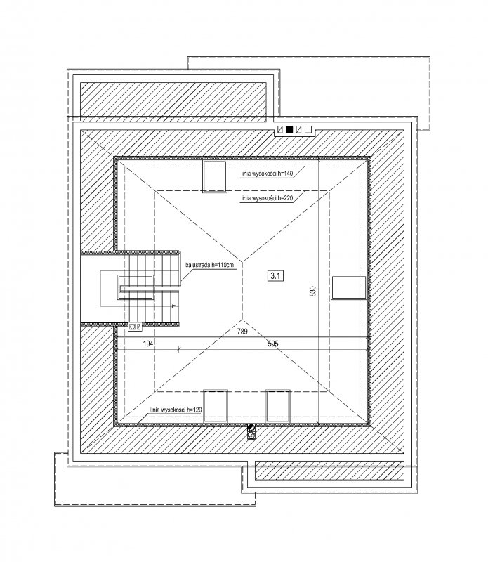
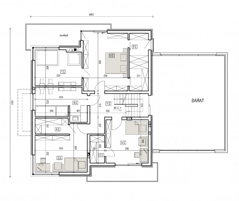
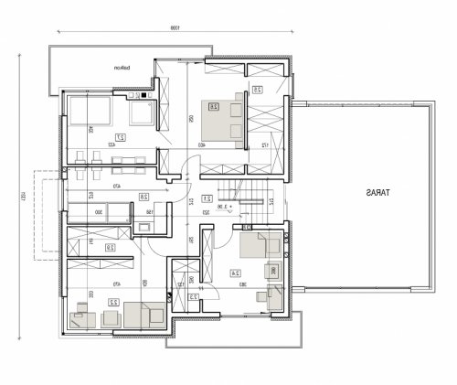
Otwarta kuchnia z wyspą, obszerna jadalnia oraz duży salon o powierzchni 47 m2 tworzą na parterze wspólną przestrzeń. Na piętrze znajdują się dwie duże sypialnie z własnymi garderobami oraz jedna większa sypialnia z podwójną garderobą i dostępem do prywatnego pokoju kąpielowego. Łazienka główna posiada wydzieloną przestrzeń na pralnie. Dom posiada bardzo wygodny garaż na dwa samochody osobowe (o szerokości 650cm). Projekt może być realizowany na terenach objętych planem zagospodarowania, w którym wymagane jest duże nachylenie dachu i odpowiednia wysokość budynku do kalenicy. W prezentowanym projekcie dostępne jest możliwe do zagospodarowania poddasze nad piętrem (można zaprojektować np. pomieszczenie do rekreacji). Dostęp do poddasza poprzez typowe schody żelbetowe z klatki schodowej. Domy z powyższymi cechami powstają w Warszawie-Wilanowie. Dostępnaj jest wersja powyższego projektu z tradycyjnym dachem o kącie nachylenia 21 stopni. Możliwe jest również wykonanie typowej połaci nad garażem (w prezentowanym projekcie nad garażem znajduje sie taras).
Energooszczędność:
Wersja standardowa:
Projekt spełnia wymagania cieplne dla nowo projektowanych domów określone w WT2008 (Rozporządzenie Ministra Infrastruktury dotyczące warunków technicznych, jakim powinny odpowiadać budynki i ich usytuowanie). Charakterystyka energetyczna w granicach 120 [kWh/m2/rok].
Wersja energooszczędna:
Projekt dostępny w wersji energooszczędnej .Czas realizacji zamówienia 10dni.
Charakterystyka energetyczna w granicach 75 [kWh/m2/rok].
Projekt w tej wersji posiada instalację wentylacji z odzyskiem ciepła oraz zmodyfikowane grubości izolacji fundamentów, podłóg, ścian, stropów i dachu.
1.1 Przedsionek 4.3
1.2 Hall 9.3
1.3 Kuchnia 16.6
1.4 Spiżarnia 4.0
1.5 Jadalnia 14.4
1.6 Pokój dzienny 47.1
1.7 Wc 1.6
1.8 Pom. gospodarcze 4.0
1.9 Garderoba 7.0
1.10 Garaż 2 st. 38.7
1.11 Pom. gospodarcze 5.9
2.1 Przedpokój 7.8
2.2 Sypialnia 17.1
2.3 Garderoba 3.2
2.4 Sypialnia 14.8
2.5 Garderoba 8.8
2.6 Sypialnia 20.7
2.7 Łazienka 13.2
2.8 Łazienka 12.8
2.9 Garderoba 4.1