Ściany zewnętrzne 2-warstwowe : Beton komórkowy ( 24cm) / Pustak ceramiczny (25cm) + styropian 20cm Uściany < 0,20 W/(m2*K) – warunek spełniony.
Ławy fundamentowe tradycyjne. Ściany fundamentowe betonowe gr.24(25cm) z bloczków betonowych lub wylewane.
Stropy - płyta żelbetowa . Zamiennie można zastosować strop gęstożeberkowy typu TERIVA .
Konstrukcja dachu - tradycyjna drewniana , pokrycie dachu z dachówki ceramicznej.
Elewacje - pokryte tynkiem strukturalnym cienkowarstwowym.
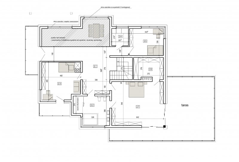
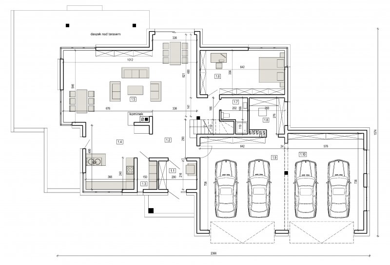
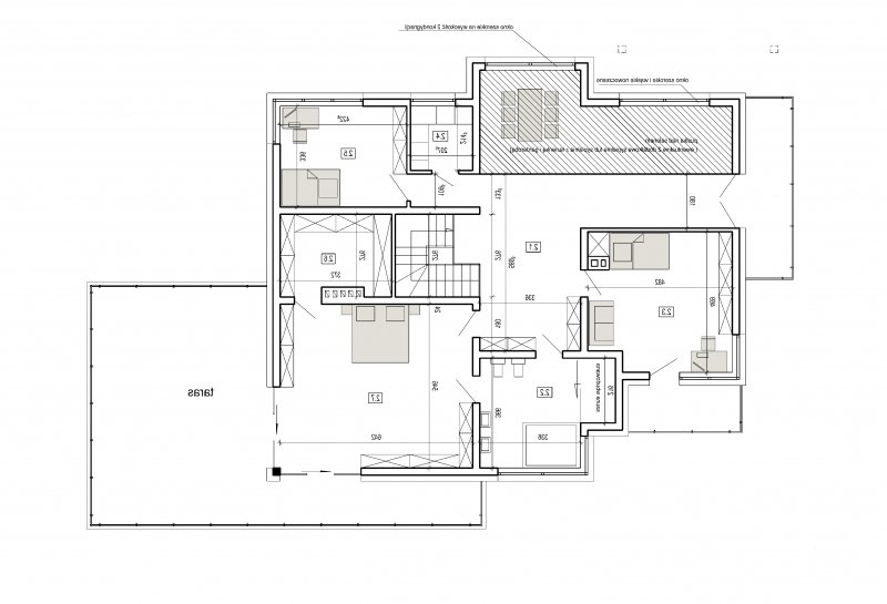
Projekt willi podmiejskiej o architekturze współczesnej. Parter domu tworzy otwartą przestrzeń, na którą składa sie duży salon, kuchnia z jadalnią. Kuchnia w stylu nowoczesnym z miejscem na wolnostojącą "wyspę". Piętro domu ma charakter strefy nocnej, w skład której wchodzą sypialnie z garderobami oraz pomieszczeniami sanitarnymi. Dom posiada duże, przestronne pomieszczenia. Na piętrze zamiast "pustki nad salonem" można wykonać 2 dodatkowe sypialnie. Projekt posiada garaż na 4 samochody osobowe. Istnieje możliwość zmniejszenia garażu do 2 stanowisk.
Energooszczędność:
Wersja standardowa:
Projekt spełnia wymagania cieplne dla nowo projektowanych domów określone w wt2008 ( rozporządzenie ministra infrastruktury dotyczące "warunków technicznych ,jakim powinny odpowiadać budynki i ich usytuowanie )
charakterystyka energetyczna w granicach 120 [kwh/m2/rok]
Wersja energooszczędna:
Projekt dostępny w wersji energooszczędnej .czas realizacji zamówienia 10dni.
charakterystyka energetyczna w granicach 75 [kwh/m2/rok]
projekt w tej wersji posiada instalację wentylacji z odzyskiem ciepła oraz zmodyfikowane grubości izolacji fundamentów,podłóg,ścian, stropów i dachu.
1.1 Przedsionek 6.0
1.2 Hall 9.6
1.3 Spiżarnia 3.10
1.4 Kuchnia 19.80
1.5 Salon 56.21
1.6 Pokój/gabinet 21.40
1.7 Łazienka 4.24
1.8 Pom. gospodarcze 6.87
1.9 Garaż 2 st. 44.33
1.10 Garaż 2 st. 41.59
P.U. parteru bez garażu 127.22
P.U. ogólem 85.92