Ściany zewnętrzne 2-warstwowe : Beton komórkowy ( 24cm) / Pustak ceramiczny (25cm) + styropian 20cm Uściany < 0,20 W/(m2*K) – warunek spełniony.
Ławy fundamentowe tradycyjne. Ściany fundamentowe betonowe gr.24(25cm) z bloczków betonowych lub wylewane.
Stropy - płyta żelbetowa . Zamiennie można zastosować strop gęstożeberkowy typu TERIVA .
Konstrukcja dachu - tradycyjna drewniana , pokrycie dachu z dachówki ceramicznej.
Elewacje - pokryte tynkiem strukturalnym cienkowarstwowym.
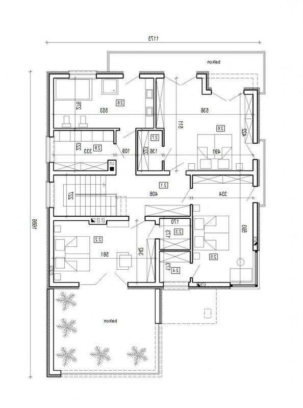
Projekt domu o architekturze współczesnej. Na parterze zaprojektowano część dzienną z dużym salonem, piętro to część nocna. Każda sypialnia na piętrze posiada własną garderobę. W bryle domu znajduje się garaż na 2 samochody osobowe. 
 
 Istnieje możliwość opracowania podobnej wersji projektu.
Energooszczędność:
Wersja standardowa:
 Projekt spełnia wymagania cieplne dla nowo projektowanych domów określone w wt2008 ( rozporządzenie ministra infrastruktury dotyczące "warunków technicznych ,jakim powinny odpowiadać budynki i ich usytuowanie )
 charakterystyka energetyczna w granicach 120 [kwh/m2/rok]
 Wersja energooszczędna:
 Projekt dostępny w wersji energooszczędnej .czas realizacji zamówienia 10dni. 
 charakterystyka energetyczna w granicach 75 [kwh/m2/rok] 
 projekt w tej wersji posiada instalację wentylacji z odzyskiem ciepła oraz zmodyfikowane grubości izolacji fundamentów,podłóg,ścian, stropów i dachu.
1.1 PRZEDSIONEK                    5.2
1.2 HALL                                 10.5
1.3 KUCHNIA z JADALNIĄ      18.2
1.4 POKÓJ DZIENNY                55.3
1.5 SCHOWEK                           6.4
1.6 ŁAZIENKA                           4.6
1.7 SCHOWEK                           1.4
1.8 KOTŁOWNIA                        7.1
1.9 GARAŻ                              32.3
PU. PARTERU BEZ GARAŻU 108.7
RAZEM PU. PARTERU            141.0
 
					
		 
					
		 
					
		 
					
		 
					
		