PROPOZYCJE MATRIAŁOWE ZASTOSOWANE W PROJEKCIE (TECHNOLOGIA BUDOWY)
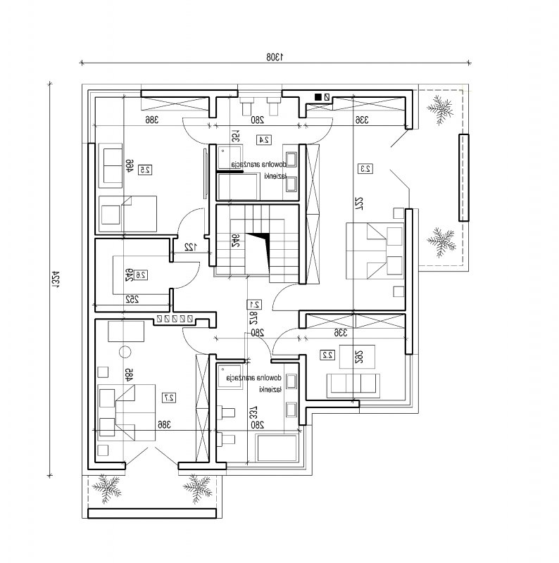
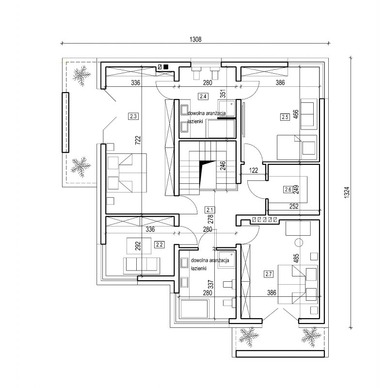
projekt domu podmiejskiego o architekturze współczesnej. parter domu tworzy otwartą przestrzeń na którą składa sie salon, kuchnia z jadalnią oraz ażurowa klatka schodowa. kuchnia możliwa do wykonania w stylu nowoczesnym z miejscem na wolnostojącą "wyspę" . piętro domu ma charakter strefy nocnej w skład której wchodzą 4 sypialnie z garderobami oraz pomieszczeniami sanitarnymi. w bryle budynku znajduje się wbudowany garaż 1-stanowiskowy .
podobne projekty wykonujemy na indywidualne zamówienie.
energooszczędność:
wersja standardowa:
 projekt spełnia wymagania cieplne dla nowo projektowanych domów określone w wt2008 ( rozporządzenie ministra infrastruktury dotyczące "warunków technicznych ,jakim powinny odpowiadać budynki i ich usytuowanie )
 charakterystyka energetyczna w granicach 120 [kwh/m2/rok]
 wersja energooszczędna:
 projekt dostępny w wersji energooszczędnej .czas realizacji zamówienia 10dni. 
 charakterystyka energetyczna w granicach 75 [kwh/m2/rok] 
 projekt w tej wersji posiada instalację wentylacji z odzyskiem ciepła oraz zmodyfikowane grubości izolacji fundamentów,podłóg,ścian, stropów i dachu.
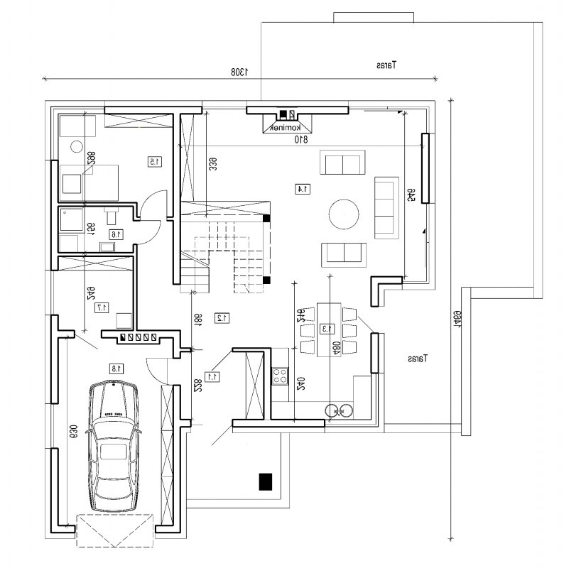
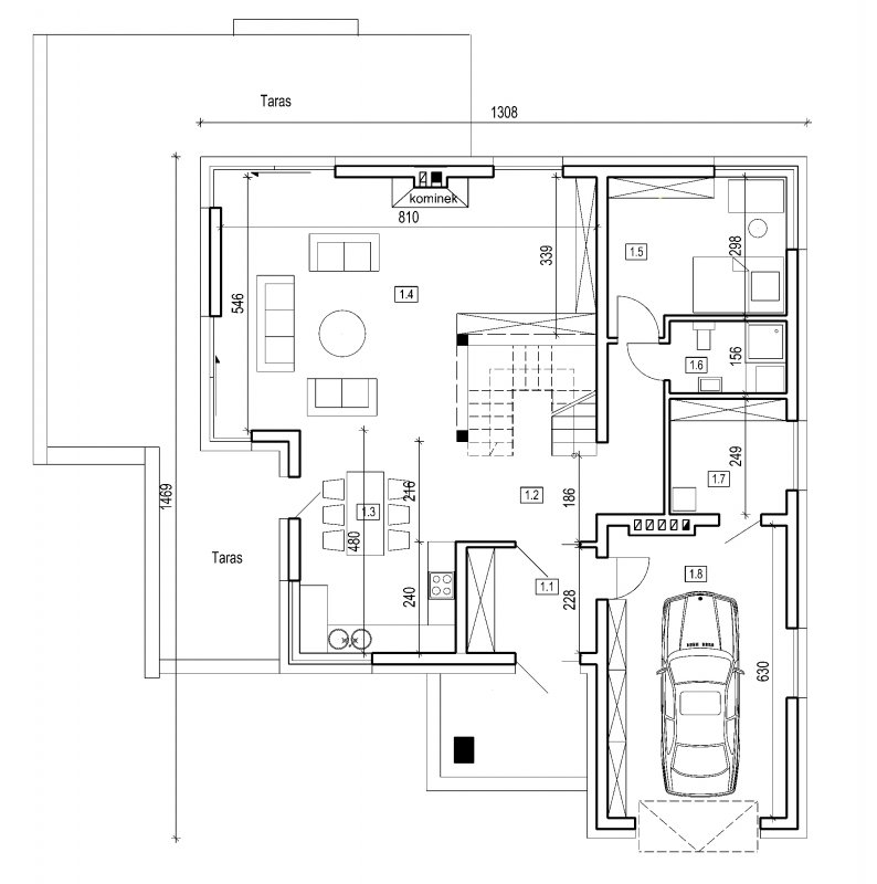
Parter:
1.1 PRZEDSIONEK 6.3
1.2 HALL 11.9
1.3 KUCHNIA I JADALNIA 15.3
1.4 POKÓJ DZIENNY 37.5
1.5 POKÓJ 12.0
1.6 ŁAZIENKA 1.8
1.7 POM.GOSP. 6.2
1.8 GARAŻ 1 ST. 24.0
Pow. użytkowa parteru: 91.0
+ garaż : 24.0
