Ściany zewnętrzne 2-warstwowe : Beton komórkowy ( 24cm) / Pustak ceramiczny (25cm) + styropian 20cm Uściany < 0,20 W/(m2*K) – warunek spełniony.
Ławy fundamentowe tradycyjne. Ściany fundamentowe betonowe gr.24(25cm) z bloczków betonowych lub wylewane.
Stropy - płyta żelbetowa . Zamiennie można zastosować strop gęstożeberkowy typu TERIVA .
Konstrukcja dachu - tradycyjna drewniana , pokrycie dachu z dachówki ceramicznej.
Elewacje - pokryte tynkiem strukturalnym cienkowarstwowym.
.
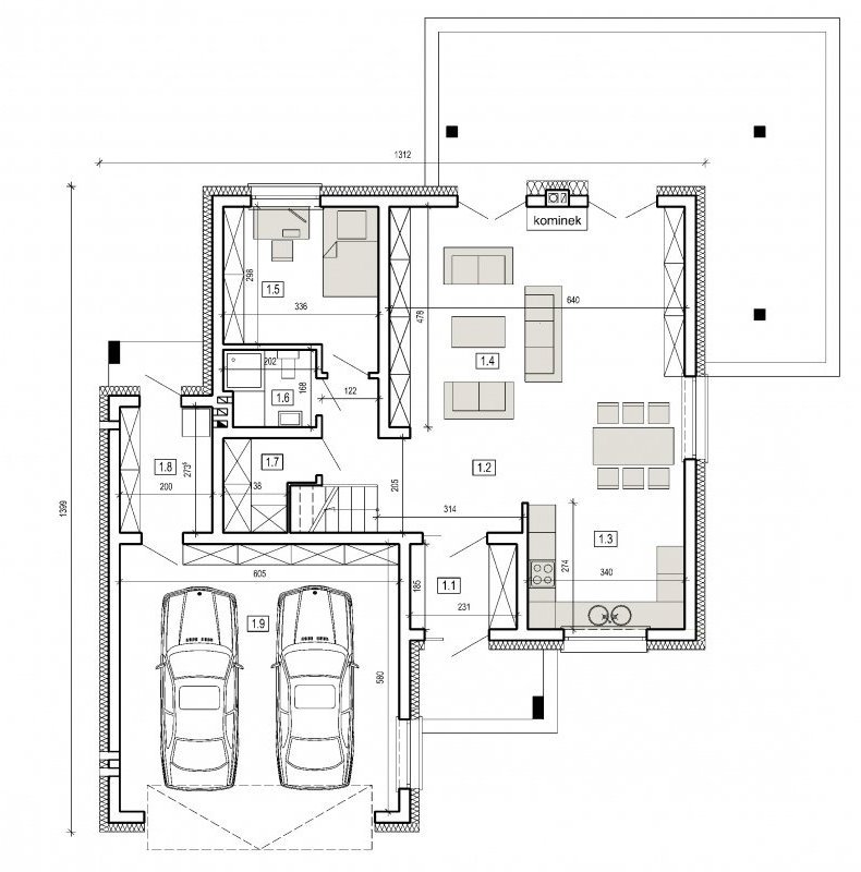
Dom o architekturze współczesnej do realizacji na działkach podmiejskich umożliwiających postawienie domu piętrowego. Układ domu jest prosty i przejrzysty, na parterze część dzienna - kuchnia z możliwością montażu tzw"wyspy", duży salon, pomieszczenie gospodarcze z wyjściem na ogród, wygodny garaż na 2 samochody. Na piętrze umieszczono pomieszczenia charakterystyczne dla strefy nocnej czyli: sypialnie oraz łazienki i garderoby.
Energooszczędność:
Wersja standardowa:
projekt spełnia wymagania cieplne dla nowo projektowanych domów określone w wt2008 ( rozporządzenie ministra infrastruktury dotyczące "warunków technicznych ,jakim powinny odpowiadać budynki i ich usytuowanie )
charakterystyka energetyczna w granicach 120 [kwh/m2/rok]
Wersja energooszczędna:
projekt dostępny w wersji energooszczędnej .czas realizacji zamówienia 10dni.
charakterystyka energetyczna w granicach 75 [kwh/m2/rok]
projekt w tej wersji posiada instalację wentylacji z odzyskiem ciepła oraz zmodyfikowane grubości izolacji fundamentów,podłóg,ścian, stropów i dachu.
1.1 Przedsionek 4.20
1.2 Hall 8.95
1.3 Kuchnia 13.90
1.4 Salon 31.70
1.5 Pokój 10.55
1.6 Łazienka 3.10
1.7 Schowek/pralnia 2.70
1.8 Pom. gosp. 5.40
1.9 Garaż 2 st. 34.65