Dane techniczne
- Powierzchnia użytkowa 138.75 m²
- Powierzchnia zabudowy 115.00 m²
- Kubatura 396.00 m³
- Kąt nachylenia dachu 2.00°
- Powierzchnia dachu 94.70 m²
- Wysokość budynku 6.73 m
- Min. wymiary działki 26.13x11.00 m
- Garaż 64.78 m²
- Pracownia LK & Projekt
Technologia budowy
- Ławy fundamentowe: żelbetowe
- Ściany fundamentowe: betonowe
- Ściany zewnętrzne: z bloczków z betonu komórkowego Ytong gr.36,5 cm
- Strop: żelbetowy
- Konstrukcja dachu: żelbetowa
- Elewacje: wykończone tynkiem mineralnym
- Okna i drzwi balkonowe: aluminiowe
- Wentylacja: grawitacyjna
Opis
Wolnostojący budynek garażowy.
Rzuty
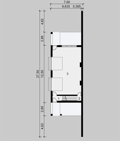
PARTER
Parter
1. Sień: 2.36m
2. Pomieszczenie gospodarcze: 2.05m
3. Garaż: 64.78m
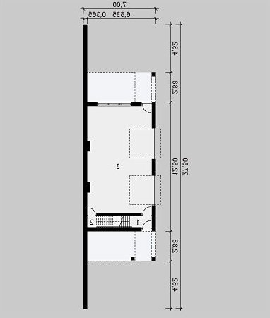
PIĘTRO
Piętro
1. Pomieszczenie gospodarcze: 69.56m
Rzuty
PARTER
Parter
1. Sień: 2.36m
2. Pomieszczenie gospodarcze: 2.05m
3. Garaż: 64.78m
PIĘTRO
Piętro
1. Pomieszczenie gospodarcze: 69.56m
Dbamy o swoich Klientów, jak nikt inny!
Do każdego projektu zakupionego za pośrednictwem serwisu kreoDOM.pl otrzymasz książeczkę z rabatami na zakupy w firmach Komfort, Fachowiec, Domino Łazienki, Komandor, Witek Home i innych. Książeczka na pewno okaże się przydatna podczas urządzania Twojego wymarzonego domu!
Książeczka z rabatami do takich firm jak: Komfort, Domino Łazienki, Fachowiec, Vox, Komandor, Witek Home i innych
Gwarancja
bezpiecznych zakupów
Dodatkowe pakiety projektowe
- Kosztorys inwestorski cena ustalana indywidualnie
- Kolektory słoneczne cena ustalana indywidualnie
- Kominek z DGP cena ustalana indywidualnie
- Wentylacja mechaniczna z rekuperacją cena ustalana indywidualnie
- Pompa ciepła cena ustalana indywidualnie