Dane techniczne
- Powierzchnia użytkowa 117.20 m²
- Powierzchnia zabudowy 106.60 m²
- Kubatura 620.90 m³
- Kąt nachylenia dachu 45.00°
- Wysokość budynku 8.19 m
- Min. wymiary działki 21.50x21.00 m
- Garaż 22.00 m²
- Pracownia MOJ-DOM
Technologia budowy
Fundamenty:
żelbetowe, wylewane
Ściany zewnętrzne:
szkieletowe, ocieplone wełną mineralną
Strop:
belkowy, drewniany, zamknięty
Schody:
drewniane
Pokrycie dachu:
gont bitumiczny
Opis
Budynek jednorodzinny, parterowy, z poddaszem mieszkalnym, niepodpiwniczony, 5 pokoi, kuchnia, garaż, kotłownia
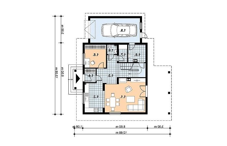
Rzuty
1. pokój dzienny23.6 m2
2. kuchnia9.6 m2
3. komunikacja12.8 m2
4. wiatrołap2.9 m2
5. pokój8.5 m2
6. wc1.7 m2
7. pom.gospodarcze2.9 m2
8. kotłownia5.1 m2
9. garaż22.0 m2
1. sypialnia17.3 m2
2. sypialnia19.7 m2
3. sypialnia15.4 m2
4. łazienka7.6 m2
5. komunikacja6.5 m2
Rzuty
1. pokój dzienny23.6 m2
2. kuchnia9.6 m2
3. komunikacja12.8 m2
4. wiatrołap2.9 m2
5. pokój8.5 m2
6. wc1.7 m2
7. pom.gospodarcze2.9 m2
8. kotłownia5.1 m2
9. garaż22.0 m2
1. sypialnia17.3 m2
2. sypialnia19.7 m2
3. sypialnia15.4 m2
4. łazienka7.6 m2
5. komunikacja6.5 m2
Dbamy o swoich Klientów, jak nikt inny!
Do każdego projektu zakupionego za pośrednictwem serwisu kreoDOM.pl otrzymasz książeczkę z rabatami na zakupy w firmach Komfort, Fachowiec, Domino Łazienki, Komandor, Witek Home i innych. Książeczka na pewno okaże się przydatna podczas urządzania Twojego wymarzonego domu!
Książeczka z rabatami do takich firm jak: Komfort, Domino Łazienki, Fachowiec, Vox, Komandor, Witek Home i innych
Gwarancja
bezpiecznych zakupów
Dodatkowe pakiety projektowe