Dane techniczne
- Powierzchnia użytkowa 106.10 m²
- Powierzchnia zabudowy 72.30 m²
- Kubatura 495.50 m³
- Kąt nachylenia dachu 40.00°
- Wysokość budynku 7.62 m
- Min. wymiary działki 19.50x16.50 m
- Pracownia MOJ-DOM
Technologia budowy
Fundamenty:
żelbetowe, wylewane
Ściany zewnętrzne:
szkieletowe, ocieplone wełną mineralną
Strop:
belkowy, drewniany, zamknięty
Schody:
drewniane
Pokrycie dachu:
dachówka betonowa
Opis
Budynek jednorodzinny, parterowy, z poddaszem mieszkalnym, niepodpiwniczony, 5 pokoi, kuchnia
Rzuty
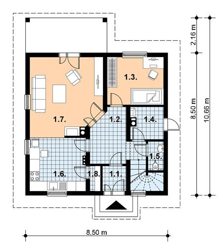
1. wiatrołap2.3 m2
2. hall10.3 m2
3. sypialnia9.9 m2
4. kotłownia3.8 m2
5. wc1.7 m2
6. kuchnia10.9 m2
7. pokój dzienny19.8 m2
8. spiżarka1.0 m2
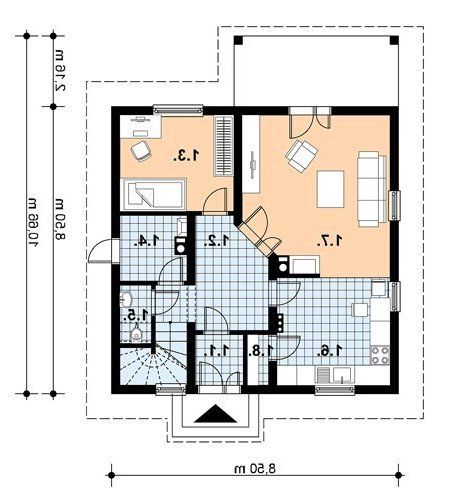
1. hall8.8 m2
2. łazienka5.9 m2
3. sypialnia12.2 m2
4. sypialnia19.2 m2
5. sypialnia14.4 m2
Rzuty
1. wiatrołap2.3 m2
2. hall10.3 m2
3. sypialnia9.9 m2
4. kotłownia3.8 m2
5. wc1.7 m2
6. kuchnia10.9 m2
7. pokój dzienny19.8 m2
8. spiżarka1.0 m2
1. hall8.8 m2
2. łazienka5.9 m2
3. sypialnia12.2 m2
4. sypialnia19.2 m2
5. sypialnia14.4 m2
Dbamy o swoich Klientów, jak nikt inny!
Do każdego projektu zakupionego za pośrednictwem serwisu kreoDOM.pl otrzymasz książeczkę z rabatami na zakupy w firmach Komfort, Fachowiec, Domino Łazienki, Komandor, Witek Home i innych. Książeczka na pewno okaże się przydatna podczas urządzania Twojego wymarzonego domu!
Książeczka z rabatami do takich firm jak: Komfort, Domino Łazienki, Fachowiec, Vox, Komandor, Witek Home i innych
Gwarancja
bezpiecznych zakupów
Dodatkowe pakiety projektowe