Dane techniczne
- Powierzchnia użytkowa 226.09 m²
- Powierzchnia zabudowy 200.67 m²
- Kubatura 1043.55 m³
- Kąt nachylenia dachu 30.00°
- Powierzchnia dachu 114.24 m²
- Wysokość budynku 9.08 m
- Min. wymiary działki 32.60x19.30 m
- Garaż 42.24 m²
- Pracownia LK & Projekt
Technologia budowy
- Wentylacja: mechaniczna z rekuperacją
- Okna i drzwi balkonowe: aluminiowe
- Sposób ogrzewania: kocioł na gaz, wspomaganie cwu kolektorami słonecznymi, ogrzewanie podłogowe
- Elewacje: wykończone tynkiem silikonowym, okładziną z wapienia naturalnego, okładziną dewnianą
- Pokrycie dachu: blacha tytanowo cynkowa, dwuwarstwowy system hydroizolacji bitumicznej na termoizolacji spadkowej PIR firmy Bauder
- Ściany wewnętrzne: z bloczków Silka E gr. 24 i 12 cm firmy Xella
- Strop: żelbetowy
- Konstrukcja dachu: drewniana, ocieplona wełną mineralną firmy Rockwool gr. 30cm; stropodach żelbetowy, ocieplony płytami z pianki poliuretanowej PIR firmy Bauder
- Ławy fundamentowe: żelbetowe
- Ściany fundamentowe: z bloczków betonowych o gr.30 cm, częściowo żelbetowe o gr.25 cm
- Ściany zewnętrzne: z bloczków z betonu komórkowego Ytong Energo gr.48 cm firmy Xella, częściowo żelbetowe
- Koszt orientacyjny (bez Vat): 754 302.00 zł.
Opis
Piętrowy dom, zaprojektowany w nowoczesnym stylu. Posiada garaż z dwoma miejscami na samochody.
Rzuty
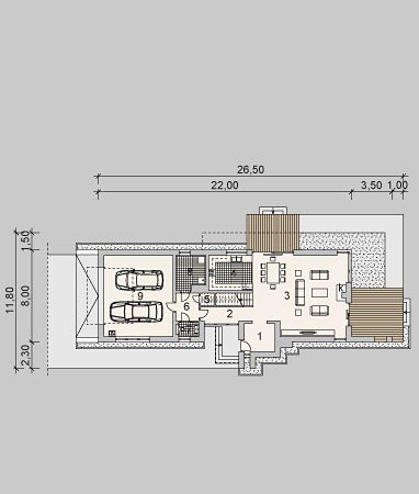
PARTER
Parter
1. Sień 6.44m
2. Hall 6.96m
3. Pokój dzienny z jadalnią 52.19m
4. Kuchnia 11.61m
5. Spiżarka 1.30m
6. Korytarz 4.82m
7. WC 2.39m
8. Kotłownia z rekuperatorem 7.39m
9. Garaż 42.24m
PIĘTRO
Piętro
1. Hall 21.09m
2. Sypialnia 14.41m
3. Sypialnia 2 16.25m
4. Łazienka 7.39m
5. Sypialnia 3 24.93m
6. Garderoba 2.41m
7. Pralnia 7.57m
8. Łazienka 2 7.64m
9. Garderoba 2 1.28m
10. Sypialnia 4 30.02m
Rzuty
PARTER
Parter
1. Sień 6.44m
2. Hall 6.96m
3. Pokój dzienny z jadalnią 52.19m
4. Kuchnia 11.61m
5. Spiżarka 1.30m
6. Korytarz 4.82m
7. WC 2.39m
8. Kotłownia z rekuperatorem 7.39m
9. Garaż 42.24m
PIĘTRO
Piętro
1. Hall 21.09m
2. Sypialnia 14.41m
3. Sypialnia 2 16.25m
4. Łazienka 7.39m
5. Sypialnia 3 24.93m
6. Garderoba 2.41m
7. Pralnia 7.57m
8. Łazienka 2 7.64m
9. Garderoba 2 1.28m
10. Sypialnia 4 30.02m
Dbamy o swoich Klientów, jak nikt inny!
Do każdego projektu zakupionego za pośrednictwem serwisu kreoDOM.pl otrzymasz książeczkę z rabatami na zakupy w firmach Komfort, Fachowiec, Domino Łazienki, Komandor, Witek Home i innych. Książeczka na pewno okaże się przydatna podczas urządzania Twojego wymarzonego domu!
Książeczka z rabatami do takich firm jak: Komfort, Domino Łazienki, Fachowiec, Vox, Komandor, Witek Home i innych
Gwarancja
bezpiecznych zakupów
Dodatkowe pakiety projektowe
- Kosztorys inwestorski cena ustalana indywidualnie
- Kolektory słoneczne cena ustalana indywidualnie
- Kominek z DGP cena ustalana indywidualnie
- Wentylacja mechaniczna z rekuperacją cena ustalana indywidualnie
- Pompa ciepła cena ustalana indywidualnie