Dane techniczne
- Powierzchnia użytkowa 284.21 m²
- Powierzchnia zabudowy 289.00 m²
- Kubatura 1134.00 m³
- Kąt nachylenia dachu 30.00°
- Powierzchnia dachu 384.00 m²
- Wysokość budynku 10.00 m
- Min. wymiary działki 27.00x28.60 m
- Garaż 40.98 m²
- Pracownia LK & Projekt
Technologia budowy
- Wentylacja: mechaniczna z rekuperacją
- Okna i drzwi balkonowe: drewniane
- Sposób ogrzewania: pompa ciepła
- Pokrycie dachu: dachówką ceramiczną 'Koramic' firmy Wienerberger, Karpiówka
- Elewacje: wykończone tynkiem silikonowym, cegłą elewacyjną Lateran firmy Wienerberger oraz okładziną drewnianą
- Ściany wewnętrzne: z pustaków ceramicznych 'Porotherm Dryfix' 25, 11.5 firmy Wienerberger
- Strop: żelbetowy
- Konstrukcja dachu: drewniana docieplona wełną mineralną gr. 30 cm firmy Rockwool
- Ściany zewnętrzne: z pustaków ceramicznych 'Porotherm Dryfix' o gr.30 cm firmy Wienerberger ocieplone styropianem 'Gold fasada' firmy Wienerberger o gr.20 cm
- Ławy fundamentowe: żelbetowe
- Ściany fundamentowe: z pustaków szalunkowych o gr.30 cm, ocieplone styropianem 'Gold fundament' o gr.20 cm firmy Termo Organika
Opis
Nowoczesny, piętrowy dom jednorodzinny.
Rzuty
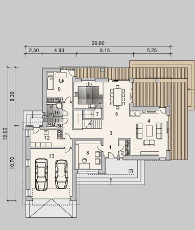
- Powierzchnia użytkowa 142,05 m2
- Sień 5,37 m2
- Garderoba 3,33 m2
- Hall 12,69 m2
- Pokój dzienny 32,35 m2
- Jadalnia 30,30 m2
- Kuchnia 15,56 m2
- Spiżarka 2,97 m2
- Gabinet 16,00 m2
- Sypialnia 15,78 m2
- Łazienka 4,58 m2
- WC 3,42 m2
- Pom.pompy ciepła 12,65 m2
- Garaż 40,98 m2
- Powierzchnia użytkowa 142,16 m2
- Hall 24,38 m2
- Sypialnia 17,83 m2
- Garderoba 13,05 m2
- Sypialnia 2 16,07 m2
- Pralnia 11,52 m2
- Łazienka 12,80 m2
- Sypialnia 3 18,16 m2
- Sypialnia 4 17,46 m2
- Łazienka 2 10,89 m2
Rzuty
- Powierzchnia użytkowa 142,05 m2
- Sień 5,37 m2
- Garderoba 3,33 m2
- Hall 12,69 m2
- Pokój dzienny 32,35 m2
- Jadalnia 30,30 m2
- Kuchnia 15,56 m2
- Spiżarka 2,97 m2
- Gabinet 16,00 m2
- Sypialnia 15,78 m2
- Łazienka 4,58 m2
- WC 3,42 m2
- Pom.pompy ciepła 12,65 m2
- Garaż 40,98 m2
- Powierzchnia użytkowa 142,16 m2
- Hall 24,38 m2
- Sypialnia 17,83 m2
- Garderoba 13,05 m2
- Sypialnia 2 16,07 m2
- Pralnia 11,52 m2
- Łazienka 12,80 m2
- Sypialnia 3 18,16 m2
- Sypialnia 4 17,46 m2
- Łazienka 2 10,89 m2
Dbamy o swoich Klientów, jak nikt inny!
Do każdego projektu zakupionego za pośrednictwem serwisu kreoDOM.pl otrzymasz książeczkę z rabatami na zakupy w firmach Komfort, Fachowiec, Domino Łazienki, Komandor, Witek Home i innych. Książeczka na pewno okaże się przydatna podczas urządzania Twojego wymarzonego domu!
Książeczka z rabatami do takich firm jak: Komfort, Domino Łazienki, Fachowiec, Vox, Komandor, Witek Home i innych
Gwarancja
bezpiecznych zakupów
Dodatkowe pakiety projektowe
- Kosztorys inwestorski cena ustalana indywidualnie
- Kolektory słoneczne cena ustalana indywidualnie
- Kominek z DGP cena ustalana indywidualnie
- Wentylacja mechaniczna z rekuperacją cena ustalana indywidualnie
- Pompa ciepła cena ustalana indywidualnie