Dane techniczne
- Powierzchnia użytkowa 237.38 m²
- Powierzchnia zabudowy 253.90 m²
- Kubatura 1034.70 m³
- Kąt nachylenia dachu 20.00°
- Powierzchnia dachu 173.50 m²
- Wysokość budynku 8.90 m
- Min. wymiary działki 27.95x22.10 m
- Garaż 38.05 m²
- Pracownia LK & Projekt
Technologia budowy
- Wentylacja: mechaniczna z rekuperacją
- Okna i drzwi balkonowe: drewniane
- Sposób ogrzewania: kocioł na gaz, podgrzewanie cwu wspomagane kolektorami słonecznymi
- Strop: żelbetowy
- Konstrukcja dachu: drewniana docieplona wełną mineralną gr. 30 cm firmy Rockwool
- Pokrycie dachu: blacha tytan.-cynk.
- Elewacje: wykończone tynkiem silikonowym, cegłą klinkierową Terca Dresden firmy Wienerberger, okładzina elewacyjna drewniana systemowa
- Ściany zewnętrzne: z pustaków ceramicznych 'Porotherm P+W' o gr. 25 cm ocieplone wełną mineralną o gr. 16 cm firmy Rockwool, częściowo pustaki ceramiczne 'Porotherm P+W' o gr. 30 cm firmy Wienerberger, ocieplone styropianem 'Gold Fasada' o gr. 20 cm firmy Termo Organika
- Ściany wewnętrzne: z pustaków ceramicznych 'Porotherm P+W' gr. 25, 11.5 cm firmy Wienerberger
- Ławy fundamentowe: żelbetowe
- Ściany fundamentowe: z pustaków szalunkowych o gr.30 cm, ocieplone styropianem 'Gold fundament' o gr.20 cm firmy Termo Organika
- Koszt orientacyjny (bez Vat): 925 312.00 zł.
Opis
Nowoczesny, piętrowy dom jednorodzinny.
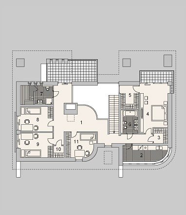
Rzuty
PARTER
- użytkowa 103,45 m2
- Hall 18,34 m2
- Spiżarka 6,04 m2
- Kuchnia 16,42 m2
- Jadalnia 24,20 m2
- Pokój dzienny 28,53 m2
- Garderoba 7,15 m2
- WC 2,77 m2
- Kotłownia 4,76 m2
- Pomieszczenie techniczne 0,98 m2
- Pomieszczenie gospodarcze 8,70 m2
- Garaż 38,05 m2
PIĘTRO
- Sypialnia 213,09 m2
- Sypialnia 313,12 m2
- Pomieszczenie gospodarcze 21,97 m2
- Sypialnia 411,42 m2
Rzuty
PARTER
- użytkowa 103,45 m2
- Hall 18,34 m2
- Spiżarka 6,04 m2
- Kuchnia 16,42 m2
- Jadalnia 24,20 m2
- Pokój dzienny 28,53 m2
- Garderoba 7,15 m2
- WC 2,77 m2
- Kotłownia 4,76 m2
- Pomieszczenie techniczne 0,98 m2
- Pomieszczenie gospodarcze 8,70 m2
- Garaż 38,05 m2
PIĘTRO
- Sypialnia 213,09 m2
- Sypialnia 313,12 m2
- Pomieszczenie gospodarcze 21,97 m2
- Sypialnia 411,42 m2
Dbamy o swoich Klientów, jak nikt inny!
Do każdego projektu zakupionego za pośrednictwem serwisu kreoDOM.pl otrzymasz książeczkę z rabatami na zakupy w firmach Komfort, Fachowiec, Domino Łazienki, Komandor, Witek Home i innych. Książeczka na pewno okaże się przydatna podczas urządzania Twojego wymarzonego domu!
Książeczka z rabatami do takich firm jak: Komfort, Domino Łazienki, Fachowiec, Vox, Komandor, Witek Home i innych
Gwarancja
bezpiecznych zakupów
Dodatkowe pakiety projektowe
- Kosztorys inwestorski cena ustalana indywidualnie
- Kolektory słoneczne cena ustalana indywidualnie
- Kominek z DGP cena ustalana indywidualnie
- Wentylacja mechaniczna z rekuperacją cena ustalana indywidualnie
- Pompa ciepła cena ustalana indywidualnie