Dane techniczne
- Powierzchnia użytkowa 432.46 m²
- Powierzchnia zabudowy 636.00 m²
- Kubatura 1854.00 m³
- Kąt nachylenia dachu 35.00°
- Powierzchnia dachu 832.96 m²
- Wysokość budynku 10.70 m
- Min. wymiary działki 46.10x36.45 m
- Garaż 84.36 m²
- Pracownia LK & Projekt
Technologia budowy
- Ławy fundamentowe: żelbetowe
- Ściany fundamentowe: betonowe
- Ściany zewnętrzne: z pustaków ceramicznych 'Porotherm P+W' o gr.30 cm firmy Wienerberger, ocieplone styropianem 'Platinum fasada' firmy Termo Organika o gr.20 cm
- Ściany wewnętrzne: z pustaków ceramicznych 'Porotherm P+W' gr. 25, 11.5 cm firmy Wienerberger
- Strop: żelbetowy
- Konstrukcja dachu: drewniana docieplona wełną mineralną
- Pokrycie dachu: dachówką ceramiczną Koramic firmy Wienerberger, Karpiówka
- Elewacje: wykończone tynkiem silikonowym, płytami elewacyjnymi ALUCOBOND
- Okna i drzwi balkonowe: aluminiowe
- Sposób ogrzewania: kocioł gazowy lub pompa ciepła
- Wentylacja: mechaniczna z rekuperacją
- Stan na kwartał: I 2014 zł.
- Roboty budowlane stanu zerowego: 191 912.95 zł.
- Stan surowy zadaszony: 500 554.92 zł.
- Stolarka: 276 926.68 zł.
- Roboty budowlane stanu wykończeniowego: 439 401.63 zł.
- Instalacje: 309 800.00 zł.
- Koszt budowy ogółem (bez VAT): 1 718 596.18 zł.
Opis
LK&1094 to projket domu piętrowego z piwnicą i czterema stanowiskami garażowymi. Idealny dla osób szukających tradycyjnych brył o nowoczesnym i eleganckim wykończeniu z przestronnymi i funkcjonalnie zaplanowanymi wnętrzami.
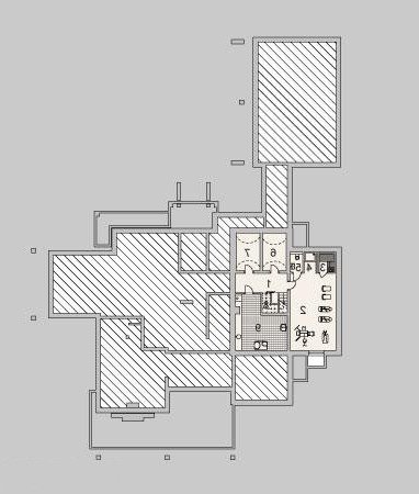
Rzuty
PIWNICA
- Powierzchnia użytkowa 87,78 m2
- Korytarz 9,16 m2
- Fitness 31,75 m2
- Sauna 3,60 m2
- Prysznic 2,24 m2
- WC 2,26 m2
- Piwniczka na wino 7,95 m2
- Pomieszczenie gospodarcze 7,95 m2
- Schowek 1,96 m2
- Kotłownia 20,91 m2
PARTER
- Powierzchnia użytkowa 307,70 m2
- Wiatrołap 8,52 m2
- Garderoba 13,67 m2
- Pomieszczenie na sprzęt ogrodniczy 17,75 m2
- Pomieszczenie gospodarcze 7,61 m2
- Kuchnia 16,06 m2
- Łazienka 7,92 m2
- Sypialnia 23,26 m2
- Korytarz 5,83 m2
- Garderoba 3,92 m2
- Hall 15,68 m2
- Łazienka 2 4,04 m2
- Biblioteka 10,06 m2
- Sauna 19,31 m2
- Pokój dzienny 43,23 m2
- Jadalnia 25,33 m2
- Salon 42,85 m2
- Kuchnia 2 26,24 m2
- Spiżarka 4,02 m2
- Korytarz 2 12,40 m2
- Garaż 84,36 m2
PIĘTRO
- Powierzchnia użytkowa 124,76 m2
- Korytarz 16,93 m2
- Pralnia 8,69 m2
- Pomieszczenie gospodarcze 7,12 m2
- Garderoba 8,71 m2
- Sypialnia 22,25 m2
- Sypialnia 2 22,13 m2
- Łazienka 9,26 m2
- Łazienka 2 12,81 m2
- Sypialnia 2 16,86 m2
Rzuty
PIWNICA
- Powierzchnia użytkowa 87,78 m2
- Korytarz 9,16 m2
- Fitness 31,75 m2
- Sauna 3,60 m2
- Prysznic 2,24 m2
- WC 2,26 m2
- Piwniczka na wino 7,95 m2
- Pomieszczenie gospodarcze 7,95 m2
- Schowek 1,96 m2
- Kotłownia 20,91 m2
PARTER
- Powierzchnia użytkowa 307,70 m2
- Wiatrołap 8,52 m2
- Garderoba 13,67 m2
- Pomieszczenie na sprzęt ogrodniczy 17,75 m2
- Pomieszczenie gospodarcze 7,61 m2
- Kuchnia 16,06 m2
- Łazienka 7,92 m2
- Sypialnia 23,26 m2
- Korytarz 5,83 m2
- Garderoba 3,92 m2
- Hall 15,68 m2
- Łazienka 2 4,04 m2
- Biblioteka 10,06 m2
- Sauna 19,31 m2
- Pokój dzienny 43,23 m2
- Jadalnia 25,33 m2
- Salon 42,85 m2
- Kuchnia 2 26,24 m2
- Spiżarka 4,02 m2
- Korytarz 2 12,40 m2
- Garaż 84,36 m2
PIĘTRO
- Powierzchnia użytkowa 124,76 m2
- Korytarz 16,93 m2
- Pralnia 8,69 m2
- Pomieszczenie gospodarcze 7,12 m2
- Garderoba 8,71 m2
- Sypialnia 22,25 m2
- Sypialnia 2 22,13 m2
- Łazienka 9,26 m2
- Łazienka 2 12,81 m2
- Sypialnia 2 16,86 m2
Dbamy o swoich Klientów, jak nikt inny!
Do każdego projektu zakupionego za pośrednictwem serwisu kreoDOM.pl otrzymasz książeczkę z rabatami na zakupy w firmach Komfort, Fachowiec, Domino Łazienki, Komandor, Witek Home i innych. Książeczka na pewno okaże się przydatna podczas urządzania Twojego wymarzonego domu!
Książeczka z rabatami do takich firm jak: Komfort, Domino Łazienki, Fachowiec, Vox, Komandor, Witek Home i innych
Gwarancja
bezpiecznych zakupów
Dodatkowe pakiety projektowe
- Kosztorys inwestorski cena ustalana indywidualnie
- Kolektory słoneczne cena ustalana indywidualnie
- Kominek z DGP cena ustalana indywidualnie
- Wentylacja mechaniczna z rekuperacją cena ustalana indywidualnie
- Pompa ciepła cena ustalana indywidualnie